查看完整案例


收藏

下载
曲江南湖墅白木_室内别墅
项目名称:曲江南湖墅白木室内别墅
设计公司:意匠建筑设计有限公司
设计总监:陈曦
设计团队:郝佳、尚艾丹
设计时间:2018年1月
完工时间:2018年12月
空间面积:400㎡
有白有木,就叫白木。
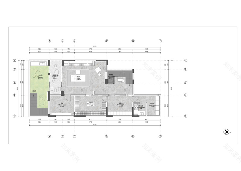
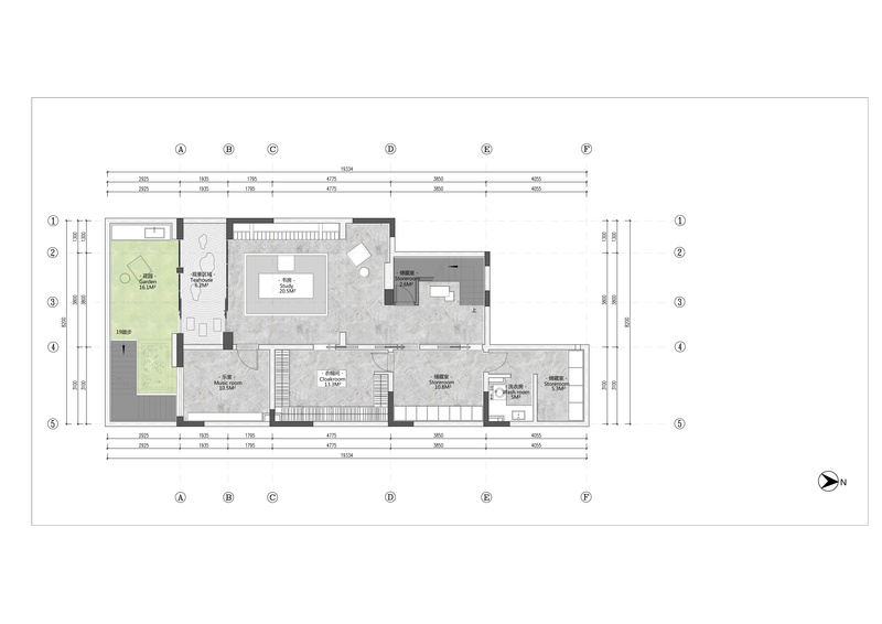
项目位于西安曲江新区,临近南湖,周边景色秀丽,很是宜居。三层叠墅在垂直空间清晰划分了主人家的功能需求,一层起居,包含客餐厅以及厨房,二层休憩,包含卧室系统和家庭活动,半地下室满足主人兴趣爱好以及储藏等辅助功能。
入口在一层北侧,结合前院和玄关设计,主要满足停车、入户以及更衣等实用功能;餐厅结合西厨岛台位于通高空间正中,贯穿了一二两层,是家庭交流的重要场合,同时餐厅和客厅在空间上有局部嵌套和流动,增强了两个最重要功能的相互联系;客厅南侧又结合露台、楼梯和下沉庭院,享受阳光雨露,与半地下层建立联系;沿着三跑的楼梯向上是二层的休息空间,家庭榻榻米休憩厅南北联系各个卧室,主卧的窗户进行了一些改造,将原本短小的窗户调整为落地的长窗,最大限度引进南向阳光和户外的景色;半地下层主要满足主人书香门第的兴趣爱好,琴棋书画,宽阔的书房和室内外景观相结合,别有情趣。
设计中主要采用了白和木,两者搭配旨在创造一种安宁和谐的氛围;返璞归真,去除一切不必要的装饰和手法,将空间本质淋漓尽致的表现出来。而其中的细节和情调也是结合使用功能所表达,如餐厅边嵌入式的装饰柜和客厅侧面的壁炉。灯光设计做了一些的尝试,在客厅主卧等重要空间都取消了主光源,配合以点状射灯和局部的线性灯带,只有贯通两层的餐厅顶上安装了吊灯,凸显其在整个空间中的重要性。
A villa on the south lake of qujiang river_ indoor villa
There is wood who is white, called white wood.
The project is located in Qujiang new area of xi 'an, close to the south lake, with beautiful surrounding scenery and it is very livable. The vertical space of the three-tiered house clearly divides the functional needs of the host family, the living room on the first floor, including the guest dining room and kitchen, the rest part on the second floor, including the bedroom system and family activities. The semi-basement meets the host's interests, hobbies, storage and other auxiliary functions.
The entrance is on the north side of the first floor, combining the front yard and porch design, mainly for parking, entering, dressing and other practical functions. The dining room combined with the west kitchen locates in the center of the height space through 1st and 2rd floor, which is the important occasion of family communication. At the same time, the dining room and the sitting room have local nesting and flow on the space, strengthening the mutual connection of the two most important functions. On the south side of the living room, the terrace, the stairs and the sunken courtyard are combined to enjoy the sunshine, which also establish a connection with the semi-underground floor. Up the stairs is the rest space on the second floor. The tatami mat rest hall connects the bedrooms from the north to the south. The Windows of the main bedroom have been modified, the originally short windows changes into the long windows that fall to the ground, so as to embrace the southern sunlight and outdoor scenery to the maximum extent. Half underground floor basically satisfies the hobbies of the host, --lute-playing, chess, calligraphy and painting. Wide study together with landscape both indoor and outdoor, is full of atmosphere.
The color white and wood are used in this design, which aims to create a peaceful and harmonious atmosphere. Removing all unnecessary adornment and decorations and recovering the house’s original simplicity to express the dimensional essence incisively and vividly. And the details among them are also the expression combined with its practical use, such as the decoration cupboard and the fireplace on the side of the dining-room. Lamplight design made a few attempt, removing main illumination of the sitting room and other important space, cooperating with the linear lamp and dotty light. Only installing a droplight on the top of the dining-room highlight its importance in whole space.
入户玄关
楼梯间
餐厅
厨房
客厅
客厅
书房
主卧室
主卧卫生间
客厅
负一层平面图
一层平面图
二层平面图
客服
消息
收藏
下载
最近















