查看完整案例

收藏

下载
深圳白石洲有巢新城是深圳城区内少见的城中村改造项目。白石洲村是深圳市南山区核心地带遗留的最大规模城中村之一,村内有603栋由村民自发建造的房子,房子大多数年久失修,且结构设计混乱,村内公共空间拥挤逼仄,采光通风条件差,市政设施老化简陋,消防隐患巨大。
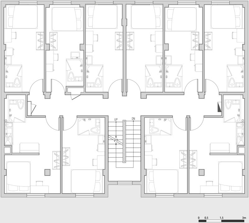
白石洲有巢新城项目在经过多轮考证后, 挑选具有典型意义的9栋建筑进行改造升级。项目注重人文关怀,除对建筑结构进行加固优化设计、平面功能重新梳理设计外,还对公共空间进行升级与优化,力求在城中村也打造出社区式的生活方式,为城中村注入一份精致的宁静。
白石洲有巢新城项目不仅仅是一个唯一独立的建筑项目,它是城中村里的精神家园,是一次勇敢的尝鲜,是一次从生存到生活的努力。
Baishizhou Youtha Apartment is a rare renovation project of residential houses in urban villages in Shenzhen. Baishizhou village, containing 603 houses built by local villagers, is one of the largest urban villages in Nanshan District in central Shenzhen.
The village is in poor living condition, where most houses withunsafe structure are in long-time disrepair,public spaces are crowded and cramped, lighting and ventilation condition are bad, municipal facilities are aging, and fire safety is not promised.
After our research, 9 typical buildings in the village were selected for renovation and upgrading. The project strongly emphasizes humanistic care, because we want to introduce a community-based lifestyle and delicate tranquility into the urban village. Therefore, we not only carry out designs on structure reinforcement and function optimization of residential buildings, but also figure out solutions to improve public environment.
Baishizhou Youtha Apartment is not only a residential renovation project. It is also a spiritual home in urban village, a brave attempt, and an effort for a better life.
实景照片
平面图
平面图
平面图
平面图
平面图
平面图
实景照片
公寓轴测图
效果图
效果图
客服
消息
收藏
下载
最近













