查看完整案例

收藏

下载
项目位于中国四大名镇之一,广东中部的“陶艺之乡”佛山。佛山自古经济发达,商业繁荣,文教鼎盛,是武术、陶艺及粤剧发源传承的历史古城。在文武双全的佛山中,伫立一座飞鸟环绕群集的聚光地,这是天际▪飞鸟 城市展厅,用鸟瞰与羽翼丰满的流线呈现城市人文脉络之美。
会当凌绝顶,一览众山小。站的足够高,美景尽收眼底;飞得足够远,穿梭云间城市与林语。
风把每个角落的消息传遍世界
飞鸟迎风展翅 天际编织指引
高空中见证变迁
风的信使
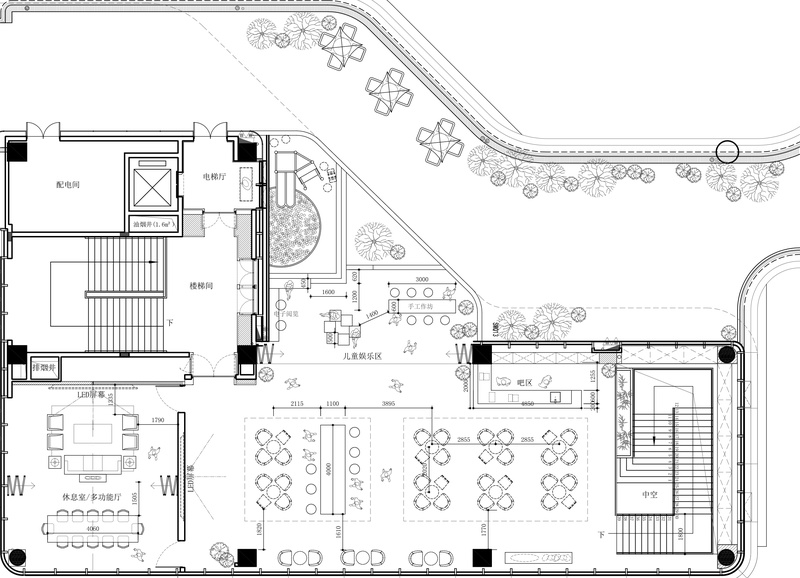
天际▪飞鸟 城市展厅 是一幅流动的画卷,用鸟瞰的视觉专注到生活中 物品、人 以及 城市光景。小到谷米颗粒大至山丘沟壑,飞鸟的眼睛容得下万种柔情。空间采用流线与洁白的灯光作翱翔的背景,拆解流行文字和年代物品的元素,环绕比比。风吹麦田,日光倾泻,纯粹的干净与温馨暖色营造阵阵写意。
这里处处皆是明媚与流转,自由贯通是空间平面的主语。风无障碍地穿过一层,顺着群鸟的指引游历富有年代感的文字与物品,最后在那个彷如 “暴风眼”的洞口集中地张狂地螺旋升腾,更远更高。
项目位于中国四大名镇之一,广东中部的“陶艺之乡”佛山。
佛山自古经济发达,商业繁荣,文教鼎盛,是武术、陶艺 及 粤剧发源传承的历史古城。在文武双全的佛山中,伫立一座飞鸟环绕群集的聚光地,这是 天际▪飞鸟 城市展厅,用鸟瞰与羽翼丰满的流线呈现城市之美。
小到谷米颗粒大至山丘沟壑,飞鸟的眼睛容得下万种柔情。
空间采用流线与洁白的灯光作翱翔的背景,拆解流行文字和年代物品的元素,环绕比比。
风吹麦田,日光倾泻,纯粹的干净与温馨暖色营造阵阵写意.
天际▪飞鸟 城市展厅 是一幅流动的画卷,用鸟瞰的视觉专注到生活中 物品、人 以及 城市光景。
这里处处皆是明媚与流转,自由贯通是空间平面的主语。风无障碍地穿过一层,顺着群鸟的指引游历富有年代感的文字与物品,最后在那个彷如 “暴风眼”的洞口集中地张狂地螺旋升腾,更远更高。
客服
消息
收藏
下载
最近















