查看完整案例

收藏

下载
华联城市商务中心坐落于深圳南山区,属于前海与后海超级总部基地的黄金走廊。此次设计不仅仅需要考虑将其作为展示与销售活动的场所,同时也需要考虑如何与该项目中的五栋建筑及其大堂在设计语言与材料上进行融合与延续,将这些已经存在的设计元素以不一样的形式或特色演绎进入室内空间。
而营销中心与大堂相连,也给设计带来了新的挑战,即:营销中心在销售期间既要显示出一个商业地产公司自身所具有的稳健的特质,同时又要体现这个空间作为营销中心所需要的好客与热情。对于这样的一个矛盾我们决定将“舒适”与“宁静”作为新营销中心设计的“卖点”,而事实证明通过这样的一个切入点来展现空间的价值与企业文化往往能够取得远超一般营销中心仅用模型来展示空间的方法
一层大堂接待区核心筒的垂直线条设计已经被甲方所认可且其影响力将会延伸至整个空间,同时我们在设计时也需要考虑这一设计元素,因此,我们将该元素以不同的尺度与材料转换至从核心筒延伸出来的通往营销展示区的墙面上来,以此来完成从大堂到营销中心的转换与过渡。在二层洽谈区与VIP会客区,这一设计元素被转化成不同的形式,并通过这些不同的形式来与原来的墙面以及结构形成对比,其中最明显的是在洽谈区,新的设计将原来的室外花园的效果进行增强,并让整个花坛蜿蜒穿梭于室内以此达到连接室内各功能区以及室外花园的目的,这样的设计不仅为“洽谈舱”与“花园会客区”提供了与自然亲密接触的空间和有机、开放的形态,同时,也使得“洽谈舱”与“花园会客区”成为这个活跃销售区的功能性展示品;而这种通过将绿色元素与有机形态进行整合的方式,不但在严谨、禅意的原设计基础上注入了“舒适”的感觉,最重要的还让客户提前体验到了在营销功能结束后各办公楼通过户外花园连接起来后的感受。
位于营销核心区域的现代茶室,在设计上不仅融入了当地文化,而且将电梯厅通过整个视觉轴线与茶室连接在了一起,并形成了多个层级的视觉效果与展示效果。
开放洽谈区实景图
洽谈区细部实景图
洽谈区空间实景图
茶室内部实景图
茶室细节实景图
茶室外部空间实景图
等候区实景图
接待空间墙面细节实景图
转换空间实景图
接待空间实景图
一层天花平面手绘图
一层平面手绘图
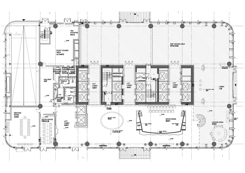
一层平面图
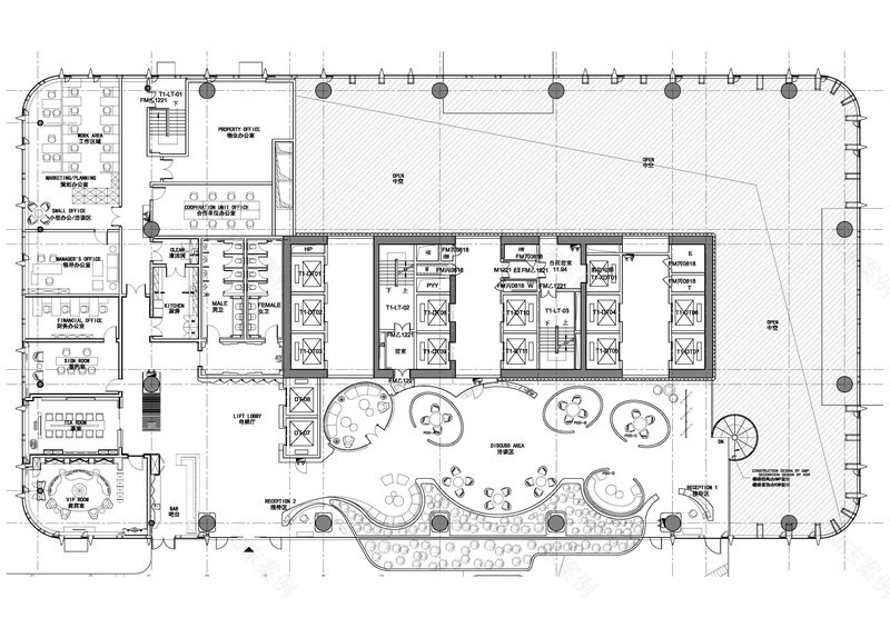
二层平面图
二层立面节点图
二层节点图
洽谈区立面图
洽谈区效果图
模型区手绘图
接待大堂手绘图
概念设计
概念意象图
客服
消息
收藏
下载
最近
























