查看完整案例

收藏

下载
业主是一对年轻的小夫妻,他们希望家是很简单很纯粹的,就是一个温馨舒适的依靠,墙面最干净的白色搭配一些木质元素的家具,每一个空间的设计都是实用为主,没有任何造型的墙面,适合整体空间布局的家具尺寸,虽然户型不算大,但是整体的空间比例很舒服,最大化的体现空间感,我的业主得意的跟我说:楼下一样户型的邻居来我家看觉得我家比她家大多了,这就是户型改造和整体搭配的重要性,改造合理加上家具软装搭配的契合确实更能体现户型的空间感。
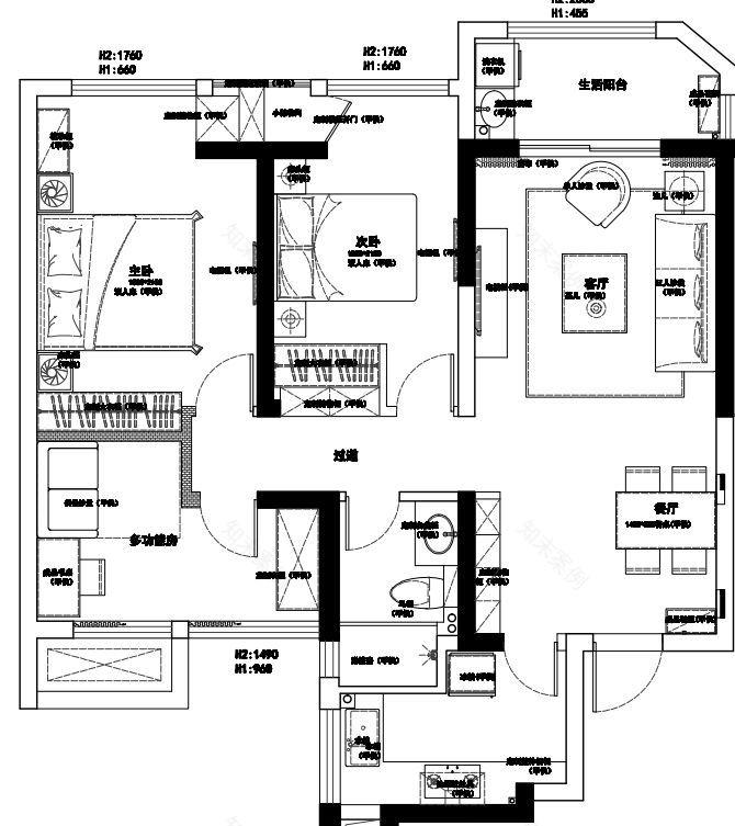
户型图
(原始结构图)
(平面布置图)
玄关
客厅
客厅没有做任何墙面造型,墙面就是最简单的白色乳胶漆,浅灰色三人沙发搭配姜黄色单人沙发,简单的装饰画作为点缀背景,整体的氛围安静舒适。
厨房
厨房白色高分子柜门搭配灰色墙砖,厨房的设计不仅是要好看更重要的是使用的方便,该有的收纳功能都要设计到位。
餐厅
卫生间
卧室
走廊
客服
消息
收藏
下载
最近













