查看完整案例

收藏

下载
南京景枫中心大堂和电梯厅的设计以高端时尚为主,灵感源自于高端办公的商务人士的商务穿着以及这些装束在不同季节所产生的变化。
大堂是整栋楼最为开放且出入最频繁的区域,此区域我们以人在春季的穿着形象做为切入点来展示此空间。同时,春天是万物复苏的季节,此处大堂设计也象征着景枫集团生机勃勃的发展历程,从入口到大堂如同公司完成了一次华丽的转变。空间里的柱子或接待台让人联想到手表与领带夹,淡雅的色彩更能突显出精致庄重的细节。
而标准层电梯厅体现了西装马甲的穿着方式:由另一边叠过来再扣上纽扣,再运用优雅气质的领带、皮带、袖扣等来体现,夏季的装束比春季的感觉更为轻便却能更突显重要的部分,以简洁的材料,刚柔并重的线条来呈现设计。线条间精致的细节呈现出设计的焦点。
大堂实景图
大堂实景图
大堂实景图
大堂实景图
大堂实景图
大堂电梯厅实景图
电梯厅实景图
大堂实景图
大堂实景图
夜景实景图
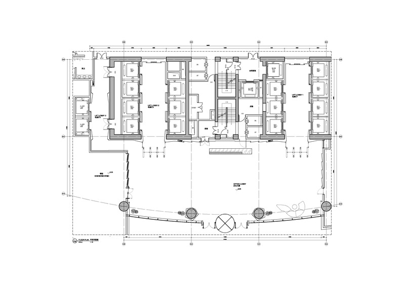
大堂平面图
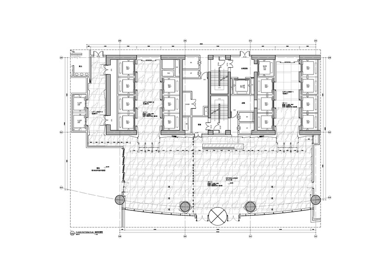
大堂地面铺装图
大堂天花图
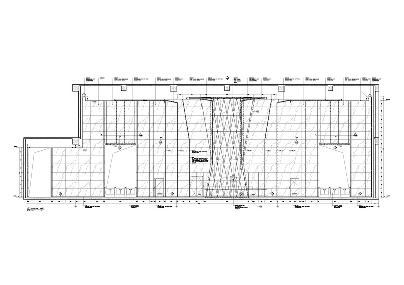
大堂立面图
电梯厅立面图
大堂细部节点图
设计理念示意图
大堂手绘图
大堂电梯厅手绘图
大堂手绘图
客服
消息
收藏
下载
最近






















