查看完整案例

收藏

下载
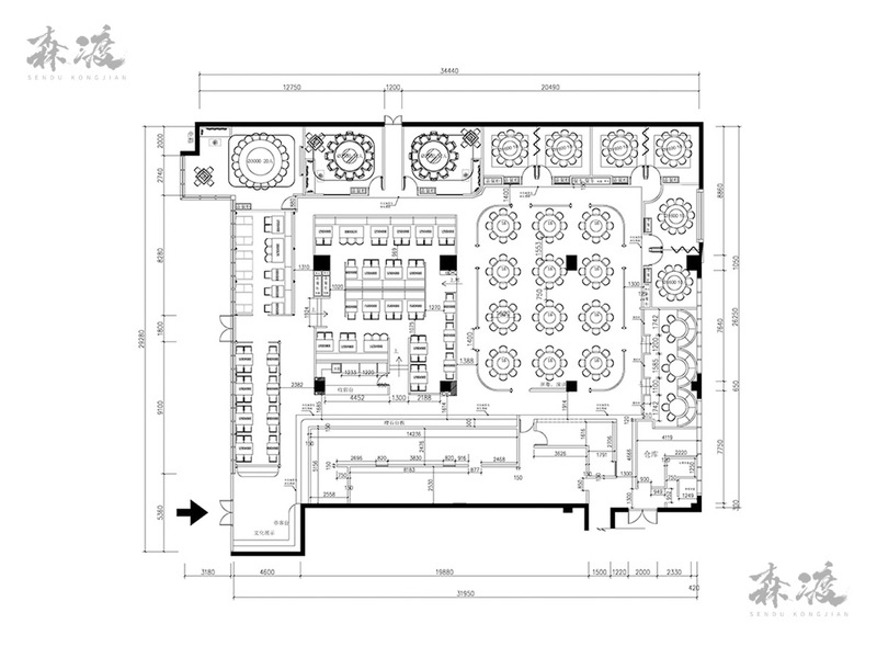
深圳思乡坊湘菜餐厅是一家连锁餐饮品牌,森渡餐饮设计根据思乡坊品牌市场定位,全新打造了新一代品牌形象,亲民而又不失优雅品质。餐厅外观使用了复古青砖青瓦的古建筑设计,室内以木色为主,以绿色植物、桃花点缀,典雅与现代的完美结合,似乎一下子从城市的喧嚣进入了一个休闲放松优雅的空间。空间合理的布局满足店铺功能需求的同时,也为餐厅实现利益最大化。
森渡餐饮设计出品
森渡餐饮设计出品
森渡餐饮设计出品
森渡餐饮设计出品
森渡餐饮设计出品
森渡餐饮设计出品
森渡餐饮设计出品
森渡餐饮设计出品
森渡餐饮设计出品
森渡空间设计出品
森渡空间设计出品
森渡空间设计出品
客服
消息
收藏
下载
最近














