查看完整案例

收藏

下载
I Yoga瑜伽馆上海徐汇店
当感官静止,精神休息,心智不再摇摆不定,这种对感官和精神的稳定控制就叫做瑜伽。——— 《加德奥义书》
瑜伽这种修炼自我的运动方式,自带哲学性与精神性,瑜伽馆空间的设计不仅是为这个过程提供场所,更是以传达瑜伽精神内涵为导向的。
如果商业空间设计是对人的活动场所的一种构建,那瑜伽馆的空间则需要设计师为其构建起一种平静能量的场,用可见可触摸的材料和物质,唤起人、空间、精神之间不可见的感知与想象。
[项目诉求]
I Yoga上海徐汇店的项目诉求很明确,极佳地段的场馆选址,一个专业瑜伽品牌进入上海市场的第一家形象店铺,原品牌形象的整体升级。
[当商业需求与施工限制相冲突]
I Yoga位于上海徐汇区辛耕路,毗邻徐家汇中心商圈,周围环绕着多个高端小区、写字楼以及商业综合体。同时,I Yoga瑜伽馆作为在这个区域的临街店铺,既希望形象瞩目,但同时受到上海城市商业管理的诸多严格规范限制。
这个建筑体内跨度一至三楼的整体店铺,任何内部和外立面的结构改造都不被允许,怎样在多重管理和施工限制内实现最优设计方案并保证其可以顺利落地?这是本次设计的一个难点,也是城市商业设计中持续存在的命题。
I Yoga的主入口位于建筑底层,作为品牌进驻上海的第一家瑜伽馆,品牌升级后视觉标志色由原来的紫色改为橙色。
设计师在吊顶外侧截面做了特殊的设计,一个橙色的圆弧造型,加入暗藏灯带,既柔和又醒目的营造出瑜伽馆整体的外观氛围,同时吊顶外侧可见端也得以完美遮挡。入夜后沿街可见橙色的灯光线条勾勒出瑜伽馆的主体轮廓。
[以结构微调“破局”]
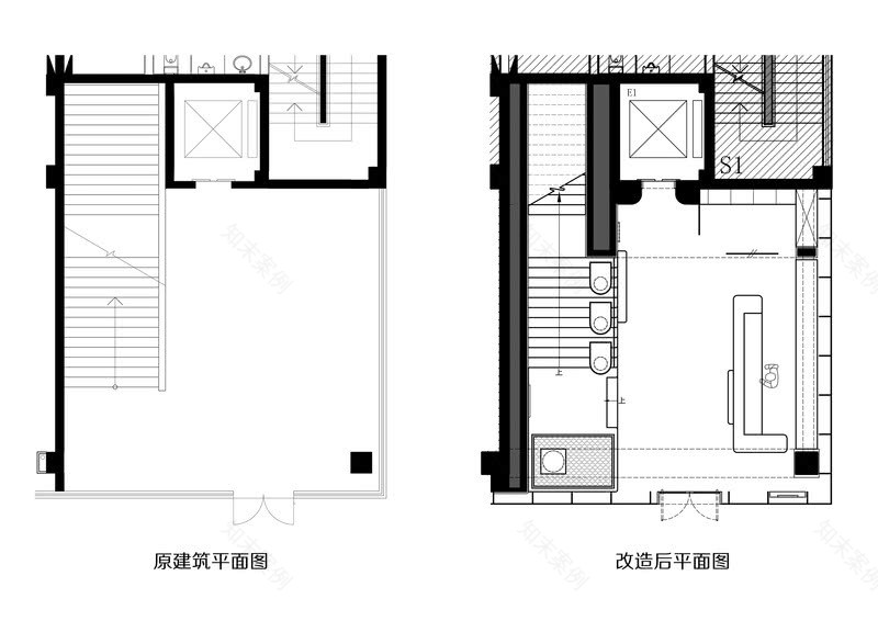
不用把原始空间拆开重组,仅通过对楼梯结构的微调,设计即已“破局”。楼梯的功能性虽然只是两层楼的通道,却也塑造了这个大空间中视觉节奏的起承转合。光线在流转中层次渐淡,空间带给人内心的平静感也随之升华。
底层入口大厅挑空7米,这是瑜伽馆的临街可见区域,奠定了顾客对整个店铺的印象基调,因此空间和氛围的设计尤为重要。但同时存在的问题是,原楼梯为混凝土浇筑不能进行结构改造,所占的比例偏大,约近三分之一,导致空间比例有些失调,过于宽大开敞的楼梯,既不实用,也让二楼的空间缺乏足够的私密性。
设计通过增加立柱墙体,将宽度3米的楼梯上部压缩至1.8米,在保证行走距离的前提下,适当缩小进入二楼的入口,提高私密性。
大厅的主要功能除迎宾接待外,也兼顾取送毛巾和选购部分一次性用品,深色半透明玻璃隔断既划分了功能空间,也便于沟通,方便管理者对人员成本的合理配置。
另一方面,原建筑楼梯笔直朝向街道,设计师改变了第一级踏步的方向,增加一个转角平台,让进入更具仪式感。
充足的转角平台面积中,设计师设置了一个水绿结合的端景,这一点睛之笔从三个方位连接起室内外,店外街道、入店上楼、下楼离店,让大厅区域减少沉闷,也赋予了空间节奏感。
原建筑大面积通透的玻璃幕墙,对于瑜伽馆平和宁静的室内空间氛围营造是不利条件,如何准确地梳理光线在空间中的比例关系,让整个场景释放出“安静的能量”,设计师因地制宜地用格栅和挂帘隔挡滤光,精确控制室外光线的进入。
通过楼梯上到二楼是一个开放的休闲洽谈区,便于在该楼层上课训练的顾客短暂的休息和阅读。该楼层主要设置的功能为男女更衣洗浴区,以及多功能舞蹈综合教室、普拉提教室等。
瑜伽馆的三楼为整个场馆的核心区,顾客可以通过垂直电梯进入三楼,入口由格栅和深色玻璃围合划分的一个半开敞区域是体测区,专业的顾问会在这里定期为客户进行体测和训练指导。
[艺术与空间的融合]
从体测区进入三楼主要VIP功能区的过道是设计初期出现的一个争议点,作为过渡空间相对单调乏味,小而狭长的位置也无法设置功能性用途,业主曾经希望可以在这里设计水景,但这个区域并不适合水景的长期养护。
在多次深入思考后,设计师为这个特殊的位置量身设计了一个艺术装置。通过双透布的层叠交错、隐藏光源的色彩渲染,结合I Yoga品牌新的视觉形象logo,最终呈现出的整体效果让第一次走过这里的人都为之驻足停留。
中心logo图案形似莲花却并非意指莲花,而是象征一种瑜伽的能量源泉,层层晕开的光影变化似乎有以柔克刚的作用,制造了视觉冲击力,但并不突兀刺眼。与I Yoga本身精神文化的呼应,也在某种意义上赋予了场馆想象力和艺术性。
三楼休息区域氛围纯净优雅,中岛吧台兼顾两种服务类型的需求,一道玻璃移门分隔VIP顾客区及普通顾客休息区。
场馆内的两条主要长走廊的设计延续了品牌部分视觉符号,灰色玻璃的使用也让教室内部保有适当的私密性。吊顶光源的设计不只是简单的使用点光源,直线条暗藏灯带也起到了指引方向的作用。走廊一侧设置有必备的小型密码储物柜和换鞋、存鞋等功能。
商业空间的打造往往存在诸多限制,而一个店铺的诉求和定位是非常明确的,改造要求、施工条件、成本控制等,在这些既定的客观因素下传达设计理念、呈现业主的理想效果,从而为商业空间带来更高的价值,是点悉始终在不断思考的命题。
一层大厅
三层过道艺术装置
外立面
外立面
一层大厅
楼梯
楼梯
二层入口
二层入口
二层更衣室
三层体测区
三层体测区
三层过道
三层休闲区
三层VIP休闲区
三层休闲区
过道
过道
教室
一层大厅
幕墙天花节点
平面对比
平面图
客服
消息
收藏
下载
最近

























