查看完整案例


收藏

下载
架构师提供的文本描述。这家商店位于一栋多层建筑的一楼,有着面向人行道的大窗户。
Text description provided by the architects. Located on the first floor of a multistory building, the store has large windows that face the sidewalk.
Text description provided by the architects. Located on the first floor of a multistory building, the store has large windows that face the sidewalk.
© Serhii Hotvianskyi (Nottdesign)
c Serhii Hotvianskyi(NottDesign)
由于浮雕,商店的地板低于路面水平900毫米。
Due to the relief the floor of the store is 900 mm below the pavement level.
Due to the relief the floor of the store is 900 mm below the pavement level.
© Serhii Hotvianskyi (Nottdesign)
c Serhii Hotvianskyi(NottDesign)
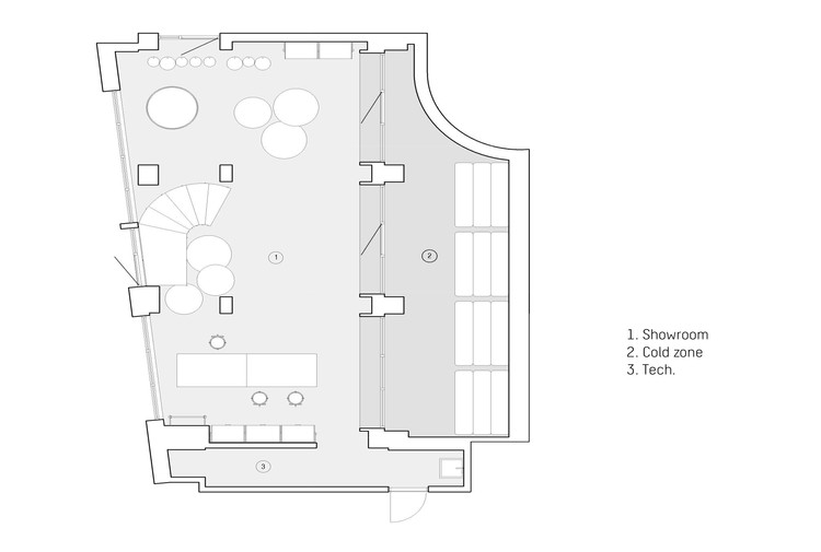
从结构上讲,商店的体积分为温暖区和寒冷区。
Structurally, the volume of the store is divided into a warm and a cold zone.
Structurally, the volume of the store is divided into a warm and a cold zone.
© Serhii Hotvianskyi (Nottdesign)
c Serhii Hotvianskyi(NottDesign)
温暖地带位于靠近入口的地方。这是一个开放的空间,包括一个室内植物展览和一个花束制作桌。
The warm zone is located closer to the entrance. It is a open space which includes an exhibition of indoor plants and a bouquet- making table.
The warm zone is located closer to the entrance. It is a open space which includes an exhibition of indoor plants and a bouquet- making table.
© Serhii Hotvianskyi (Nottdesign)
c Serhii Hotvianskyi(NottDesign)
冷区是一个孤立的平行线,它悬浮在地板上,夹在四根柱子之间,把它分成三个单独的显示卷。这是一个低温的房间,用来展示切花。
The cold zone is an isolated parallelepiped which hovers above the floor and is sandwiched between four columns that cut it into three separate display volumes. It is a room with a low temperature for the exposition of cut flowers.
The cold zone is an isolated parallelepiped which hovers above the floor and is sandwiched between four columns that cut it into three separate display volumes. It is a room with a low temperature for the exposition of cut flowers.
我们创造了一个极简的清洁空间,与鲜花的脆弱性形成了良好的对比。
We have created a minimalistic clean space that contrasts well with the fragility of fresh flowers.
We have created a minimalistic clean space that contrasts well with the fragility of fresh flowers.
© Serhii Hotvianskyi (Nottdesign)
c Serhii Hotvianskyi(NottDesign)
我们通过对比圆桌会议和螺旋楼梯来补充结构清晰的空间。
We complement the clearly structured space with contrasting round tables and a spiral staircase.
We complement the clearly structured space with contrasting round tables and a spiral staircase.
Floor plan
室内色彩解决方案的基础是幻影诺尔的灰色瓷器石器,温暖和轻的自然贴面和细节的青铜色调。
The interior color solution is built on the interaction of Mirage Norr’s gray porcelain stoneware, warm and light natural veneer and details in bronze shades.
The interior color solution is built on the interaction of Mirage Norr’s gray porcelain stoneware, warm and light natural veneer and details in bronze shades.
© Serhii Hotvianskyi (Nottdesign)
c Serhii Hotvianskyi(NottDesign)
客服
消息
收藏
下载
最近















