查看完整案例

收藏

下载
设计单位:广州深思室内装饰设计有限公司
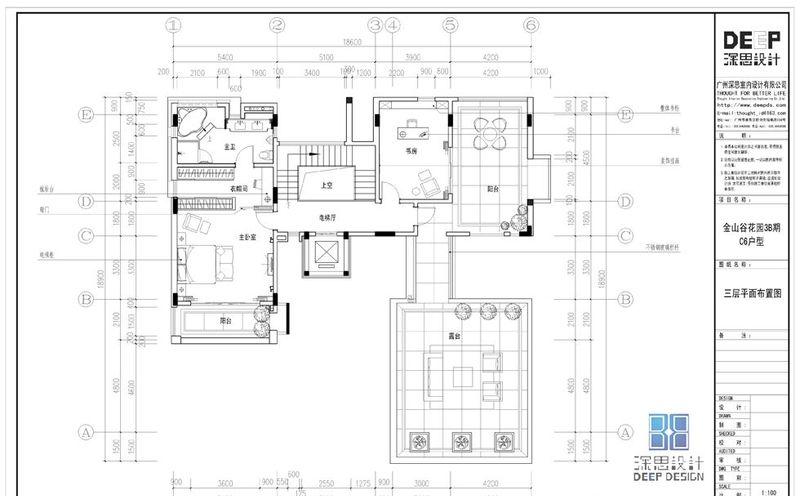
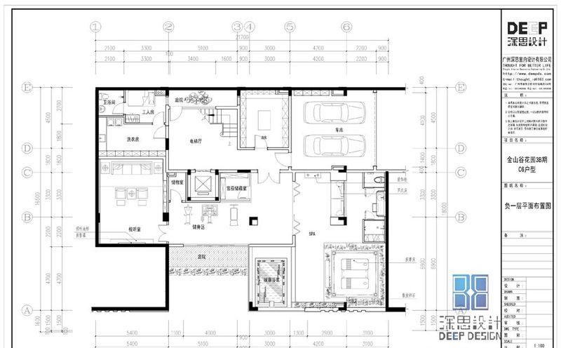
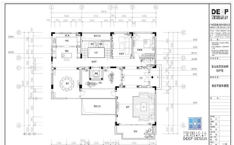
项目名称:招商金山谷别墅
项目地点:广东省广州市番禺区
项目性质:住宅
主要材料:西班牙米黄石、黑金花石、金箔、黑檀木饰面、帝皇金大理石、茶镜
竣工时间:2016-06-01
设计师与业主沟通后,了解到客户比较喜欢欧式别墅风格。设计上采用了硬装上化繁存简,在线条上做了精简,造型上借助罗马柱建筑本身的特点和黑兰木饰面、西班牙米黄石、帝皇金大理石、茶镜等材质,做了金箔吊顶配水晶吊灯,这样保留古典欧式的神韵,又符合当代人们的需求。软装部分,采用端庄典雅的欧式家具,装饰画等突出了该项目空间的华丽精美,大块面的淡紫色配色,让整个空间浪漫满屋又温馨的感觉,更显高贵奢华,和主人优雅的气质,追求一定高度的生活品质感相得益彰。
客服
消息
收藏
下载
最近













