查看完整案例

收藏

下载
卡尔生活馆是维思平总设计师陈凌设计,整体建筑外观为现代简约风格。设计师简洁明快的线条,勾勒出卡尔生活馆清晰的轮廓,向人们传达一种简单、快乐、积极的一种生活态度。
男业主是大学教授,女业主是乒乓球教练,在与业主的沟通中了解到他们注重生活品质,追求休闲的生活,喜欢自由,简单的生活方式。简约北欧风格可以很好的表达出他们的生活态度。
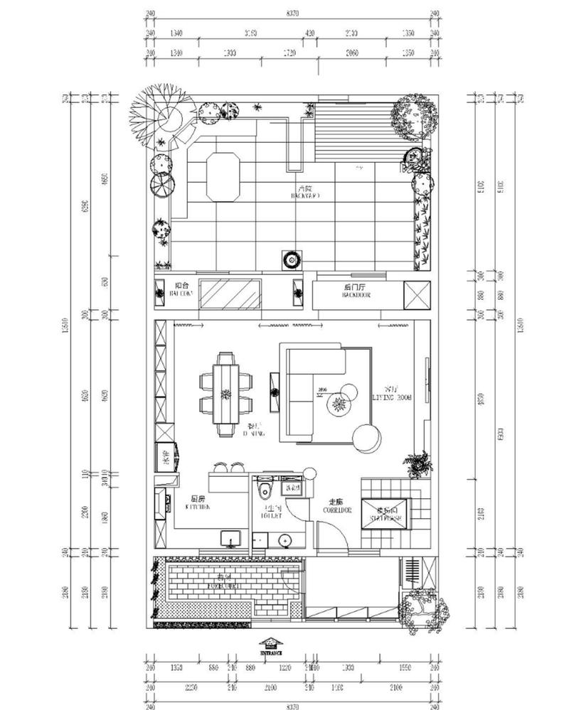
女业主爱好养花草绿植,喜欢亲近自然的感觉。院子围栏运用原木色防腐木,院子里地面铺设浅灰色花岗岩,边缘搭配白色鹅卵石与绿植很好的与整体建筑风格融为一体。
透过门厅已能领略到屋内景致,白灰的主色调配以胡桃木为主的空间装饰,是室内与室外的很好的融合与过度。室内白灰色的整体搭配很好的表达了男女业主对待生活简单,自由的态度同时运用胡桃木色进行点缀也体现出业主的那一份沉稳的气质。
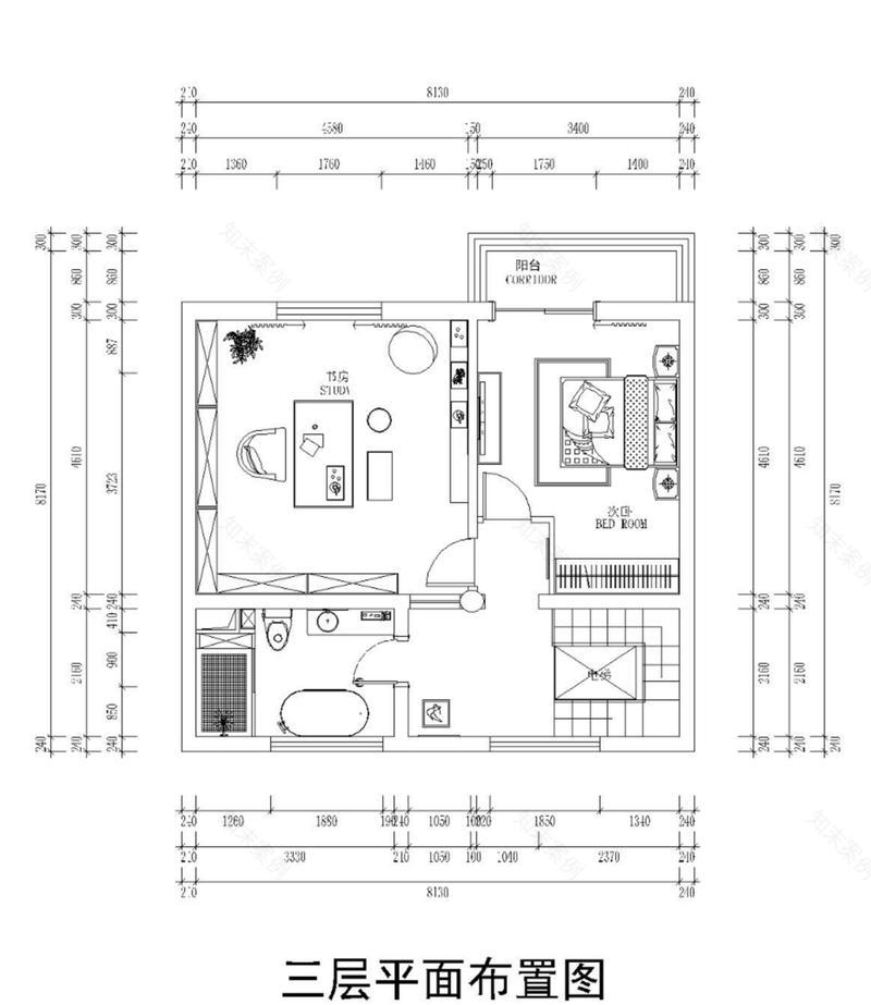
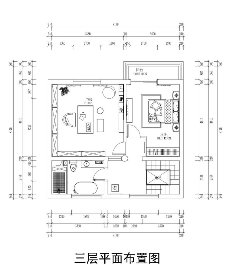
男主人卧室的设计风格与客厅保持一致,浅灰色的墙面搭配原木色的地板与胡桃木色的衣柜,软装整体也以冷色调为主,搭配一个撞色的边椅。
女主人卧室的整体色调以暖色调为主,原木色地板,衣柜用胡桃木色和白色结合。整体空间体现出女主人性格温和,平易近人的一面。
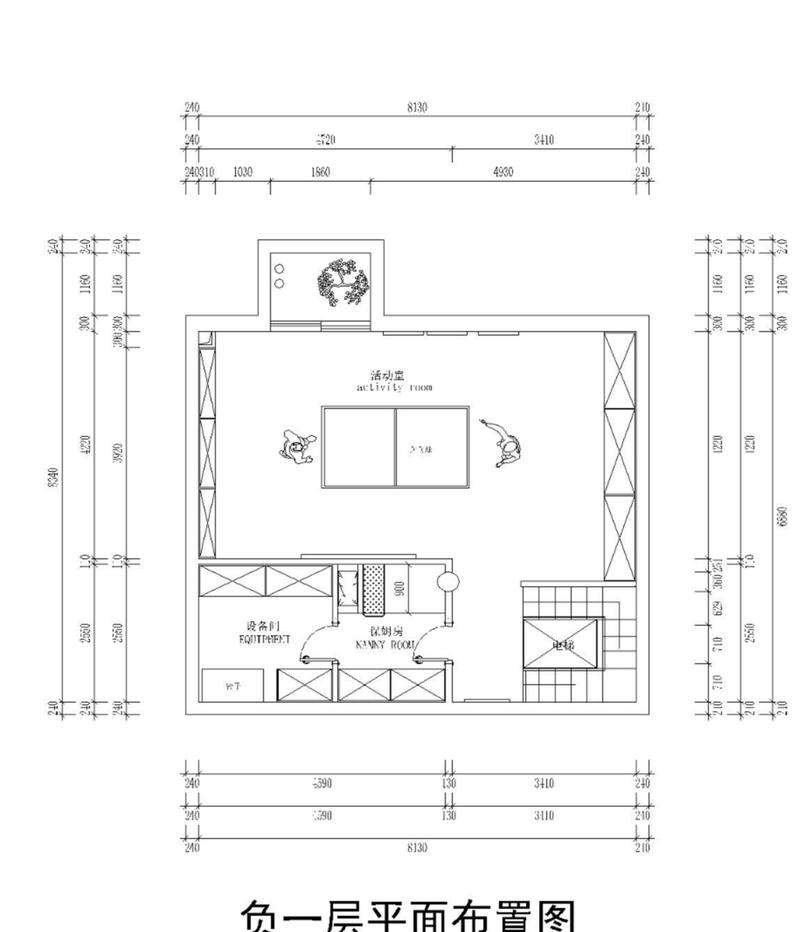
因为女业主是乒乓球教练,有健身的习惯,所以地下室在功能上主要以健身为主。在搭配上,储物柜用原木色,在原有天井的基础上改造成花池,这样地下室整体的空间感觉明亮通透。
客服
消息
收藏
下载
最近
















