查看完整案例

收藏

下载
在北京,很难遇到如此优美的办公环境,崭新的DayOne大楼就坐落在礼安门的通惠河南岸。窗外河水波光粼粼,两岸绿树成荫,开阔的视野让人心旷神怡,什么样的空间设计才能不负此美景?
2018年初,iCourt租下了建筑面积5000平方米,一共五层的办公楼,并对艾迪尔提出了希望承载当时200多名同事期待的设计需求,同时将后期施工任务也一并委托给我们。时间紧任务重,虽然场地现状条件尚算不错,但对于设计者来说,仍然算是艰巨的挑战。如何在打造人性化、场景化办公空间的同时,完美诠释iCourt的企业气质,将使用功能与空间美学完美融合,成为了设计初始我们和客户共同的追求与坚持。
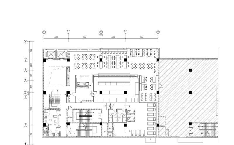
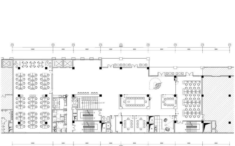
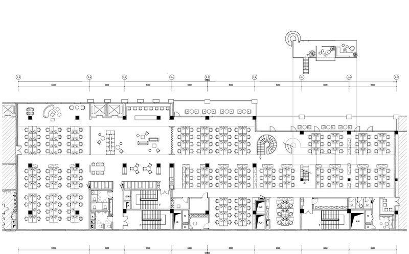
DayOne大楼共5层,租赁范围原因,首层面积很小,向上逐层扩大,呈倒梯形截面。从使用功能上iCourt员工办公主要集中在顶层五层。三、四层为更加开放的会议及大型多功能培训空间。同时,这开放的两层也可灵活转化为艺术和科技类主题的展示空间,举办各种活动。设计伊始我们把这两层定义为“艺廊”和“创客谷”。二层相对于上层,面积缩减了一半多,被打造成大楼的生活层,包括餐厅、酒吧和健身等辅助功能。仅有120平方米的首层是一个窄条形临街空间,功能上反而更加复合,可以定义成展厅,可以定义为接待厅,也可以定义为iCourt纯粹的对外窗口。
基于场地勘察和iCourt对空间功能的设想,提案重点主要有以下几点:结构改造,建立层与层间的内部联系;创建多场景的办公模式,丰富的办公体验;将融合iCourt文化特性的室内环境视觉设计贯彻到底。
本案中设置了特色鲜明的楼梯打通了一至五层的内部连接。1-3层的“格式塔”钢梯,3-4层的大楼梯可兼做演讲角,一处圆弧形旋转楼梯连接了4、5层,而5层夹层的“云亭”可通过一道滑梯滑下来。这些有趣的楼层间的连接方式时刻愉悦这每位行走者的心情和体验。
空间风格上,摒弃了一切复杂、炫技、花哨、繁冗的装饰铺陈,目光聚焦在空间本身,白色主色调,搭配水泥墙地本色、木色、黑色和局部的橙色跳跃,使空间简约、典雅并具有特别的审美气质。
好的设计只停留在图面,最终让项目落地,需要依赖技术过硬的施工。艾迪尔的施工团队为了完成好新橙项目,不负客户所托,在短短6个月的时间里,打了一场漂亮的硬仗。
极致简约的背后,是对细节的不吝追求,反复打磨,坚持匠人之心,做到尽善尽美。秉持这样的施工信念,艾迪尔将细节上的追求做到了极致,仅仅是一个旋转楼梯,最好的匠人花费近1个月的时间仔细打磨,从打样,到开模,再到现场放线,期间几易其稿,就是为了将施工质量做到最好。完成后的旋转楼梯,表面光滑圆润,曲线优雅流畅,柔和了整个空间的感受,成为了绝对的视觉中心。
贯穿一层到三层的折跑楼梯,也是在有限的空间里,凭借出色的施工控制手段和精细的尺寸把控,在最大化利用空间的同时,完美实现了最初的设计构思。完美的施工,保证了项目高完成度的落地。
DayOne大楼落成,iCourt高层最令人印象深刻的一句评价是:“我们确实是通过这个楼改变了很多。很多想做的事情,由于这个楼而有了决心和信心。”
客服
消息
收藏
下载
最近




























































