查看完整案例

收藏

下载
教室+操场+?
我们应该如何设计学校?
这是一个值得深思的课题
学校的设计不是简单的建筑物,而是一个场域;其中的任何平面布局和空间都是对某一种行为的期望,学校设计是隐性课程中非常重要的一部分。
传统的学校已经发生了转变,不再是拥有相同教室的大型建筑,而是要满足各种各样的需求,校园建设应将文化溶进校园,使人文与场域精神融于学校建筑及空间,以适宜的建筑、文化元素衔接生动的师生情感,以艺术化的空间展示诗意满盈的校园精神。
深圳市建文外国语学校,位于龙岗片区;从成立至今,因其教育理念先进、兼具国际视野及高度,已逐步得到教育系统的普遍认可,目前已成为深圳学校教育系统中的佼佼者。此次设计范围是其一栋独立的综合楼,共四层。
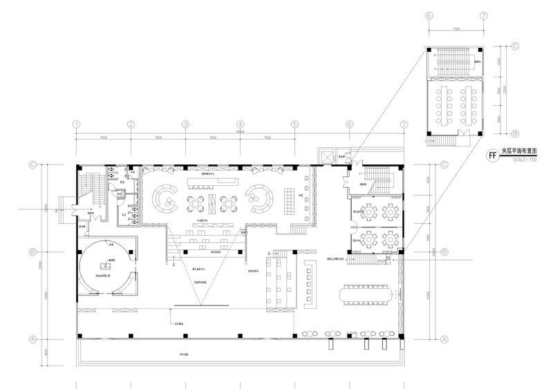
对于一层空间的功能及定位,设计师和甲方一致认为学生活动中心应该健康、有趣、国际化、兼具启发性,引导、参与、互动性强,所以我们设计了阶梯式学堂、书吧、创客中心等功能。阶梯式学堂可以作为学生的一些团体活动场所,如朗诵、武术、音乐、美术、分享会等,其实还不限于这些,有次(交付使用后)我们看到两三个小孩子在上面慢慢的滚下来,玩的不亦乐乎;其实整层空间就是个大书吧,主要考虑实用及创造空间氛围及关系,拾级而上,来到一片被各种书架环绕组合而成的区域,中间设计了一个条形吧台,即可读书、玩耍,又能锻炼学生的交际和管理能力;空间主要的观赏面选择了面对广场、操场,独立且互动,朝气蓬勃。
我们觉得一、二层之间应该有些互通,并且一楼两个主要入口之间构成的廊道应该相融且独立,最好有一定的仪式感;于是通过专业结构设计师的配合,我们拆除了相对应位置的楼板,去掉了次梁,保留了主梁并使其成为空间的构成元素。
走进二层的办公区域,设计继续延续极简设计风格,注重办公之间的功能关系和管理需求,强调空间的实用性、通透性,并充分利用自然光线,以达到环保、节能的目的。
因功能需要及原有建筑关系,在第三层设置风雨操场兼大礼堂等噪音较大的多功能厅,以免对正常课室有所干扰;大面积采用木色与白色结合,温暖而简洁。灯光设计突破传统方式,给表演、运动、会议等提供更多灯光需求的可能。
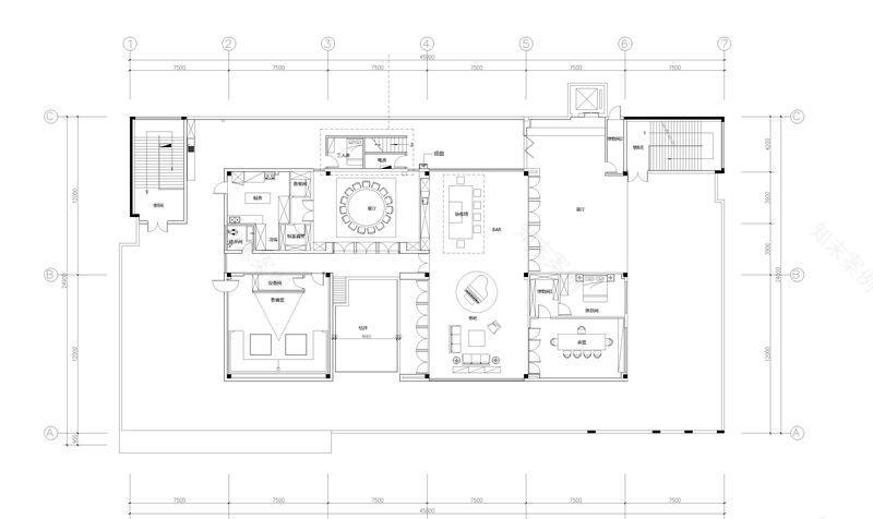
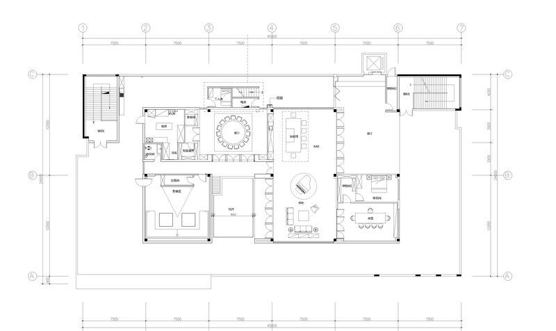
起初来到四层,看现场的第一感觉就想把这里改造成一个“空中的院子”,想象中这里应该出现一所白色的房子,房子周边有一片翠绿的草地,房子中间最好有一个天井,形成一个院落,白天沐浴阳光,晚上仰望星辰。
于是我们采用院落概念,把原有长条形建筑分为前厅、中庭、后院三部分;前厅为公共空间,设计成了相对通透的玻璃盒子,适合师生的小型聚会、分享;后院为比较私人空间,设计成了白色的实体墙空间;虚实中间是拆除楼板后形成的院子;推开客厅和餐厅的玻璃门,都可看到白色纯净的院落,修身、养性、悠然自得。
项目名称 | 深圳市建文外国语学校综合楼
项目地址 | 深圳龙岗
设计面积 | 4500平米
设计时间 | 2017年
竣工时间 | 2018年
设计团队 | 梁海滨 钱志孚 王泉 伍名灿 张贵波 魏乐平
灯光顾问 | 张华明
摄影机构 | 江南画影
客服
消息
收藏
下载
最近












