查看完整案例

收藏

下载
南昌马兰圩别墅样板间设计理念
当追逐复古成为一种生活新趋势,如何运用素材打造一个既符合现世审美又兼具怀旧价值的居住空间,便成了一个值得思考的问题。本案中,设计师选择独辟蹊径,融自然野奢于复古摩登,打造富有生机又不失优雅的居家格调。客厅中央悬垂而下的装置吊灯拟照中式灯笼的外形结构,并缀以流光溢彩的水晶,意图在中西美学之间寻找折衷融合的平衡点。巨大的金色流苏从旋转楼梯中央贯穿而下,凭借纵向流势衔接三个楼层,增强空间整体感。细密的流苏以抽象形式演绎茂密的丛林,是设计师关于都市生活的另类假设。形似篱笆的扶梯围栏在室内营建花园般静谧的野趣,配以天然铁矿石与绿植,成为空间中的点睛之处。一楼客卧以棕色调打造平和舒适的假日风情。
There is always a question how to develop a place which fits in modern aesthetic as well keeps nostalgia phenomenon. Designer uses unique mix-and-match method combining nature and vintage together to create elegant and cozy home style.The artistic crystal light estimates the structure of Chinese-style Lantern, hanging in the middle living room and balancing in both Chinese and Western aesthetics. Entire fancy marble enhances natural quality, while metal elements in ornaments and wall lamp elaborately warm the house.Detailed and colossal gold tassels are set in central of spiral stair, which vertically connect three floors and increase the sense of space entirety. The tassel is hypothesis of a special jungle and modern city mixture. Fence-style stairs set off a garden space. Brown rattan bedside in bedroom brings peaceful vacation feeling, while abstract artistic light is like straw hat in wind.
南昌马兰圩别墅样板间照片1
南昌马兰圩别墅样板间照片2
南昌马兰圩别墅样板间照片3
南昌马兰圩别墅样板间照片4
南昌马兰圩别墅样板间照片5
南昌马兰圩别墅样板间照片6
南昌马兰圩别墅样板间照片7
南昌马兰圩别墅样板间照片8
南昌马兰圩别墅样板间,设计师黄全照片
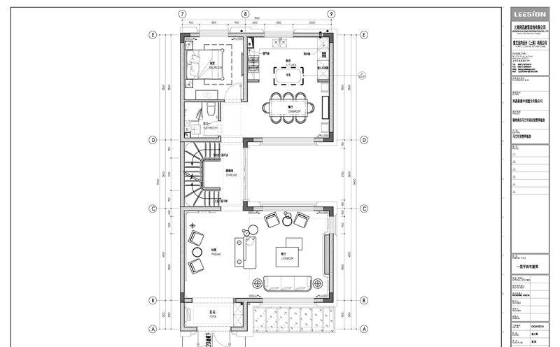
1F平面图
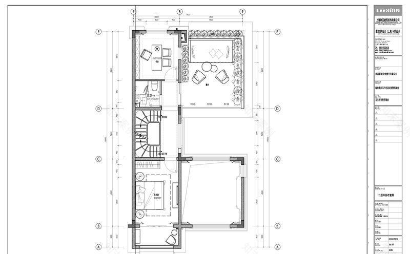
2F平面图
3F平面图
南昌马兰圩别墅样板间照片9
南昌马兰圩别墅样板间照片10
客服
消息
收藏
下载
最近
















