查看完整案例

收藏

下载
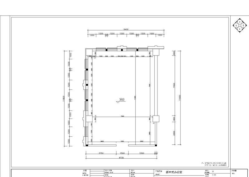
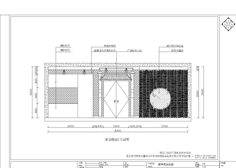
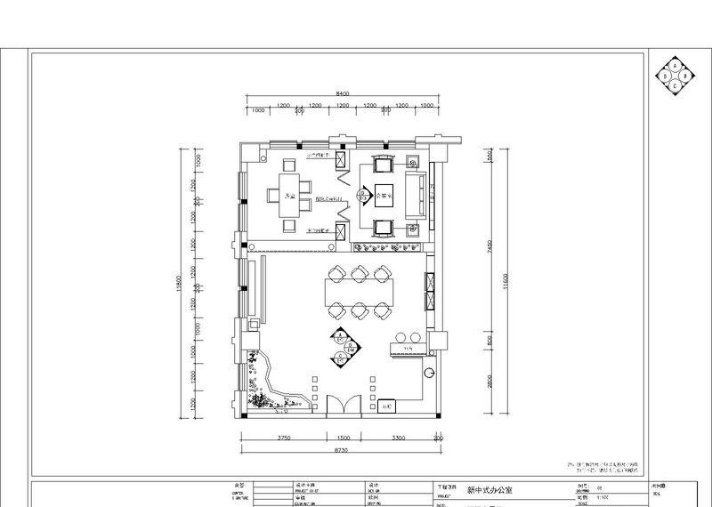
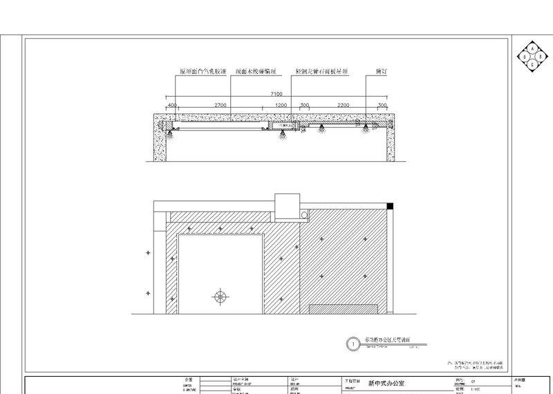
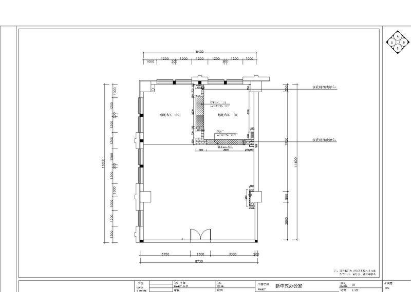
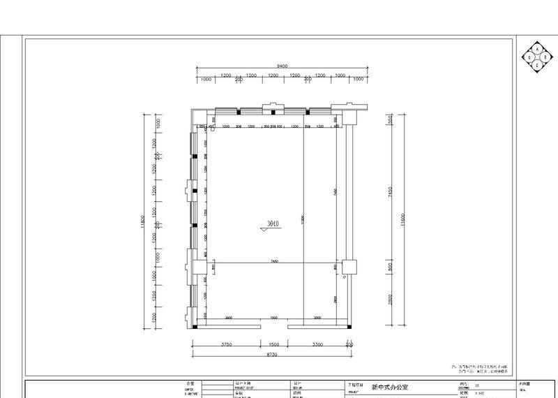
设计理念:本作品是一个中式的茶室,在设计的过程中,除了融入多种中式元素之外,还结合了很多现代的材质和手法进行了全方位的诠释。茶室的设计不宜过多的浓墨重彩,所以在整个方案中都以中国的山、水、树、木为主要色彩,结合对称的手法和风水学,营造出一个令人舒适的氛围。 灵感来源:徽派建筑中的马头墙和瓦片。四川竹子的精神。 功能:会客,洽谈,休闲,办公。 氛围:轻松,愉悦中不失厚重感 材质:实木,瓦片,软膜等 灯光:接待区灯光以明亮的白光为主。 洽谈区的光线以柔和为主加入了点缀的氛围灯。 总裁办公室以中性光为主,让人可以冷静思考。 设计背景:甲方是一家以软件开发为主的公司,虽然是时尚的科技类公司,但是老板对中式文化和茶文化深有研究。这一点与设计师不谋而合。因此才在方形的电脑群中间,有了这样一个美好轻松的世外桃源。
客服
消息
收藏
下载
最近
























































