查看完整案例

收藏

下载
项目名称:肇庆绿地香港高要养生谷项目A1样板房
项目所在城市: 广东肇庆
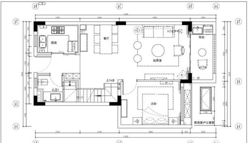
项目面积:97㎡
项目类型:样板房
设计单位:上海禾悉建筑设计有限公司
完成时间:2018年8月
本案设计引入具有强烈且浓郁的意大利色彩的品牌芬迪(FENDI)的设计理念,鹅黄般的黄奶油治愈色渗透进早春系列之中,散发动感青春的活力因子。FENDI黄一直都是芬迪专属, 在整个空间中充满了传统但非怀旧,创新但不渲染,它宣传了一种至高无上的生活方式。
开放式的客餐厅和书房相拥,故而设计师选择了灰色为基调来提升空间的延展性,不同层次的黄色拿捏有度,给予人眼球的惊悦。
客厅
整个空间运用了大量几何元素,三维立体的装饰画带来强烈的视觉冲击力,地毯独特又简单的圆弧造型,无一不在展示它的魅力。咖灰色的沙发样式打破原有基础,配以双排皮带做以点缀,配合主导色充满生机不生闷。金属质感的吊灯和茶几参插其中,做到空间区域性划分,增添轻奢。餐厅里精致的摆件,形成新时代独特时尚和大气。混搭出清新、时尚、自然的风格。
主卧
偌大的空间搭配优雅的墙饰,在黑白灰色调的基础上点缀黄色和灰粉,静谧中不乏枯燥。运用密集性装饰品作为空间细节处的点缀,营造出一个让人有着甜蜜美梦的卧室风格。
次卧
次卧以浅灰和黄奶油色点缀,用一抹橙色晕染了整个卧室,温暖且低调,吊灯延伸而下,增添了空间的立体感。
儿童房
儿童房主导星球大战主题,配以简约墙纸和艺术挂画,紧扣当下教育潮流,沉浸勇敢和挑战。
客餐厅
客餐厅
客餐厅
客餐厅
主卧
主卧装饰
主卧
主卧
次卧
次卧
儿童房
儿童房
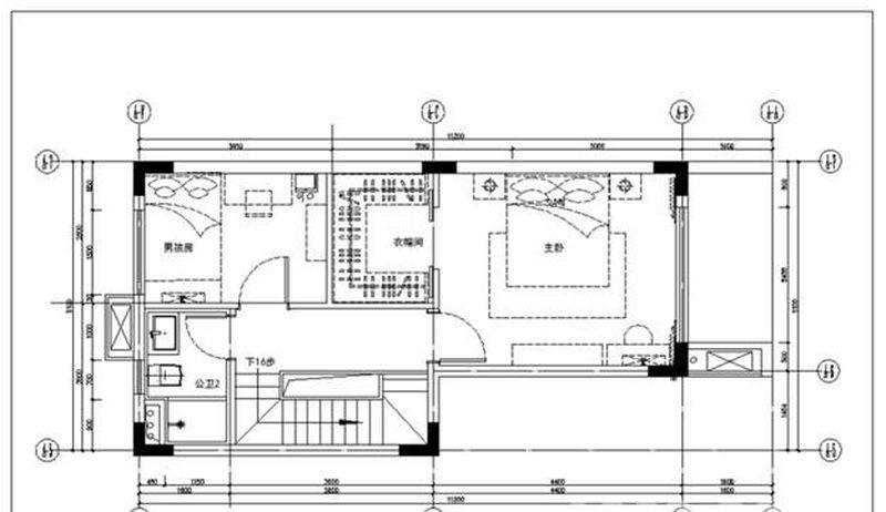
平面图
平面图
客服
消息
收藏
下载
最近
















