查看完整案例

收藏

下载
“唐武宗年间,朝廷就曾倡导成立“病坊”。到了北宋末年,各地陆续设立了为民间病人治疗的”安济坊“,它们都带有救治帮助的色彩。”通过对产品的分析定位,“坊”这个字就能代表表现出整个设计寓意。它是产品本身所带有的性质决定的设计理念。
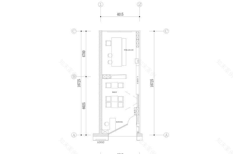
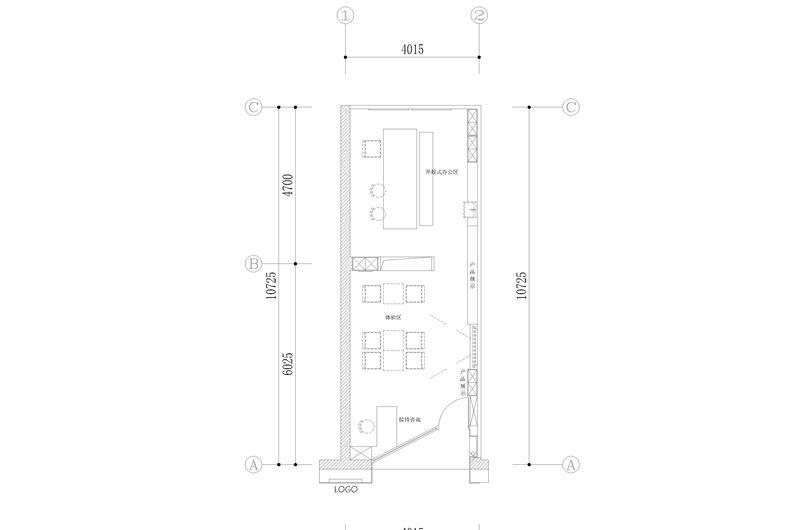
本案位于老居民区的街道,周围设施齐全,户型为常规的长方形,门面只有一间。甲方当初的设计要求是空间尽量看大,产品和体验还有接待功能都要具备,门头要凸出吸引人。商业空间中盈利性质的展示一定要从产品的性质来考虑设计感觉。甲方销售的产品是通过中医理疗中的热敷来达到治疗效果的,所以同时也是根据这一性质展开了设计思路。
门头展示
体验区
展示区
产品背景墙
背景墙
过道
会客区
过道
会客区端景
平面图
门头立面图
接待区立面图
接待区立面图
展示区立面图
展示区立面图
接待及过道立面图
接待及过道立面图
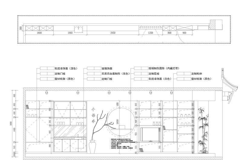
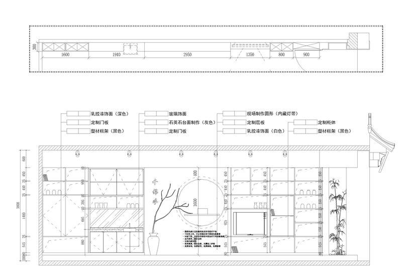
展示区柜子剖面图
展示区柜子剖面图
展示区柜子剖面图
客服
消息
收藏
下载
最近






















