查看完整案例

收藏

下载
项目位于青岛台柳路边,历史有百年的台柳路曾是青岛的大动脉,是中国近代第一条现代化马路。它见证时代历史,与人们生活的变迁。本案结合这一特殊的时代标志公共产物背景与记忆,塑造一所“用物态转换,表现时间可无限拉分延展特性”的时间艺术展馆。
作为无法看见的变量,“时间”参与三维世界中所有物态转换的过程。天汇艺术体验展馆利用物态转换慢录时间:水流凝固一样的柔长梯体、斜阳的移动疏密,水凝成冰,风化水蚀。步入空间内部,人、风、水、影、光的凝态与转换都是时间行迹的载体,如见物态将某一刻无限拉长趋于静止临界时,所泛起的细微涟漪。
以第四维“时间”为轴引导空间布局和视线:一维横面“回”字形,观者自由流动;二维化垂直体验转为多功能复合布局,大阶梯与发布区连成公共区域点间的线秩序,也是一二层间的过渡;三维面面立体,艺术品装置间围合呼应。四维直观,物质在周始的轴性转化下,将看不见的时间凝固。
本案大幅度用可灵活造异型的GRG新材料,展现物态拉伸变化属性。在中大型体量空间中给人足够的宏观体验与呼吸仰望的余地,被凝滞物态捕捉的时间在材料巨型篇幅下显现。
这个空间肩负时间使命,它是展现过去、当代与未来在同一物理空间下,不同时间轴线上的“物态记时本”。引发观者对艺术的切身体验,以及对时间无限的联想,不仅仅有柔滑或冷峻的观感体验,展馆本身就是客观震撼的时间拓本。
项目位于青岛台柳路边,历史有百年的台柳路曾是青岛的大动脉,是中国近代第一条现代化马路。
它见证时代历史,与人们生活的变迁。
本案结合这一特殊的时代标志公共产物背景与记忆,塑造一所“用物态转换,表现时间可无限拉分延展特性”的时间艺术展馆。
作为无法肉眼可见的变量,“时间”参与三维世界所有物态的转换。青岛天汇利用物态转换慢录时间:梯体水流柔长,阶梯斜阳疏密,光照横侧成峰。
设计团队在高意象高交融建筑形态中提取美感,时态拉长使视觉稳固,空间里能感觉水凝成冰,风化水蚀的细腻自然现象。
一层大阶梯承担动线引导载体,承启前台段切面。
天窗开阔,采光直指地下健身泳池洒入景外明朗青色。
大阶梯以及前台小剧场的空间,灵活成为沙龙分享、讲座等综合场所使用。空间用时间的艺术焕发功能,创造更多时间里的对话与活动模式。
空间设计在功能设计上,亦是具有时间轴延长的考量,便于作为基础为日后的商业氛围转换所用。花艺陶艺艺术区、书吧咖啡区加入安排,空间使用延展至舒适的品味层面,人们感受一种更为优雅的生活方式 。
阶梯紧嵌黑色隔挡,在扶手与空间艺术品两种功能承担中切换。GRG扶梯使得空间画面具有张力,夹型曲面利用视觉微错位紧连二层,黑色的流线厚切蜿蜒延续至吧台,连成功能与视觉上的整体与交汇。
在中大型体量空间中给人足够的宏观体验与呼吸仰望的余地,时间被凝滞物态捕捉。细腻柔韧切面反射不同角度的光照与阴影,营造简约大气的艺术语境。
步入空间内部,人、风、水、影、光的凝态与转换都是时间行迹的载体,如见物态将某一刻无限拉长趋于静止,临界时,泛起的细微涟漪。
环境设计上的分寸与游刃,提供更多场所舞台以及可能性,激励和激活交流与艺术发生。
光是重要的空间介质,亦呈现多种形态功能,有直接引入室内的暖色画面,也有作半闭合沉淀的冷色处理,折叠与开放的流动光在循环空间中形成自由秩序。
用无法名状的时间流逝感作为区隔,艺术无处不在。
每个空间都肩负着时间的使命,它们是展现过去、当代与未来在同一物理空间下,不同时间轴线上的“物态记时本”。
保利青岛天汇引发观者对艺术的切身体验、对时间无限的联想,不仅有柔滑或冷峻的观感体验,它本身就是客观的、震撼的时间拓本。
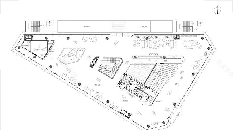
青岛天汇展厅平面图1
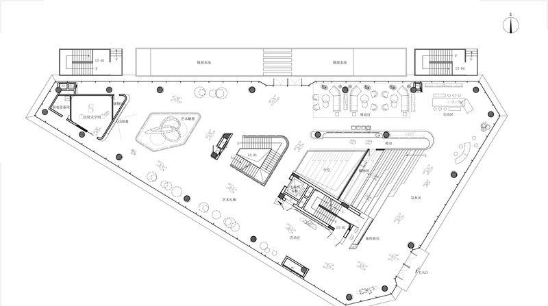
青岛天汇展厅平面图2
客服
消息
收藏
下载
最近
























