查看完整案例

收藏

下载
项目名称:听蓝·茶生活空间
项目地点:浙江省杭州市
项目面积:3000㎡
设计单位:idG·意内雅空间设计
主案设计师:朱晓鸣/裘林杰
参与人员:刘火明、史懿淸
摄影师:ingallery丛林
设计材料:莱茵河畔大理石、美国胡桃木、橡木、德赛斯岩板、木纹防火板、灯光软膜、水波纹硅藻泥、纸筋灰等
设计说明
本案的设计是对原工厂建筑空间的再设计,综合对本项目经营定位与来访客群的需求,把原建筑的散落状态通过加建让空间相联系,并通过一山一水的微景观分隔设置为茶博、茶体验、茶疗三个区域。
山阴道上行,如在镜中游
进入项目的前奏部分为茶博展示区,通过对原建筑纵向的挖空与抽离,形成了一条行径中的小道,上下视觉通达,在视觉轴线两侧错落有致地微聚着不同种类的茶品,通过不同主题来综合展示茶集合店所散发出的当代茶文化聚合展示的多样性。在空间的起势部分带入了茶史时间轴的概念,以“观”与“触”的方式更深入感知茶文化的起源到近代茶文化的发展。
不出城郭而获山水之怡,身居闹市而有灵泉之致
茶体验区取设在项目的核心区域,在对茶有了初步印象后,“听、闻、品、嗅”则是这一篇章所追求的部分。在整个中轴线中,分为上下两部分,一层空间设置为开放部分,面向量化的客户群体进行茶的体验,二楼为较为私密客群,所以设置了和而不同的以七大主题——琴棋书画诗酒茶的品茶包厢,以不同主题映射不同的饮茶方式。通过对宋代文化如撵茶图中庭外用茶的仪式感作为主创原型,进行当代化的演绎,来表达当代茶人对既有传统文化印记的延续,又对具有东方茶空间舒适度的空间体验的塑造。运用空间与精神双重借景的方式,让空间上内外相通,让室外景观延续,又让来访者心神交互,升华成精神的融合。八角窗作为贯穿整个空间的设计元素,一楼的通透与二楼的隐秘来喻指打开窗时的外向型的交往与关起窗时隐秀,让不同性格的茶人能寻得合适的品茶方式。横向轴线两侧的空间亦如流水码头,以叶为舟,踏上汀步,落座于茶台前便可由倒茶人渡下你的消沉,涤尘修身,在八角窗上点一盏香,沁不止俩人。
以茶疗空间作为篇章的收尾,开门见山即是让人震撼的大茶库,摆放着不同养生茶器,取古代药房之意来迎合把脉用茶的意境,让来访者以茶善礼,善心恒定,利人善我,器净水甘。
入园外景
茶空间入口
一层品茶区
一层品茶区
一层品茶区
一层品茶区
一层品茶区
一层品茶区
一层品茶区
一层品茶区
一层品茶区
一层品茶区
一层品茶区
一层茶展示区域
一层茶展示区域
二层包厢
二层包厢
二层包厢
二层包厢
二层包厢
二层包厢
亲子互动区
二层包厢
二层包厢
二层走廊
二层包厢
二层包厢
二层会议室
二层办公室
二层包厢
二层会议室
二层包厢
二层包厢
二层包厢
二层包厢
二层包厢
二层公开课教室
二层公开课教室
卫生间
茶博区
茶博区
茶博区
茶博区
茶博区
茶博区
茶博区
茶博区
茶博区
茶博区
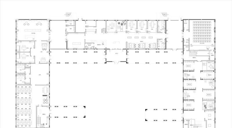
平面图
平面图
客服
消息
收藏
下载
最近





















































