查看完整案例

收藏

下载
本项目位于广州钢铁旧厂址,始兴于50-60年代的广钢,是生产钢材的重工业基地之一。曾为广州经济发展和城市建设原料而存在的广钢,成为即将为20万居民服务的生态宜居区。在创世纪中光是宇宙生命创造的开始, 他希望通过光能温暖这冷冰冰钢架城新的历史, 让将来生活在这里的居民带来生态的感觉。
这展馆主体是个37米(宽)X28米(深)X8.4米(高)的长方形玻璃盒子,建筑主体由钢结构建成,没有结构墙体。玻璃幕墙的设计分为两大部份,底层是2.4米高清玻璃,上层是六米高的重叠玻璃来控制釆光进入室内及营造晚上的灯光效果。建筑外的景观水池如苏州护城河般围绕主城,达到让室内参观者不但可以欣赏美丽的园林设计, 还可以让水景倒影出建筑主体的效果。
在这个总面积约1000平方米的建筑主体中约80%的面积是展厅及相关的配套功能,客户希望不用实墙体来分割功能区域,避免令空间出现零碎的效果。设计师的概念是用光来解决分割空间的要求,从建筑的顶部打开洞口让釆光自然地从顶部洞囗进入空间,一个用”光来分割空间”的尝试。从物理学角度来说“光”是一种无形的波頻,当我们利用它来进行分割空间时,我们需要光的载体来呈现它。就好像著名当代艺术家James Turell 一直专注在对识知”光的载体”的研究和创作,它可以是霧或者大风雪, 正如他的作品”Ganzfeld”所表达的感觉一样。
设计师把自己创作的三个装置正正放在天顶釆光之下—1) 晨曦之城;2)书天梯;3) 工作架大厦。它们都在表达项目主题时亦同时成为光的载体。例如,一个在接待前台后面以工作架形态建筑群城市的装置, 它在不同时间的光照下呈现出光与装置的节奏, 它也是接待前台与走道之间的分割。另一个把咖啡休闲区与模型展示区分割的例子便是书天梯。人在空间里走动时便有着空间被分割与不被分割的感觉。
本项目位于广州钢铁旧厂址,始兴于50-60年代的广钢,是生产钢材的重工业基地之一。
设计团队希望通过光,能温暖这冷冰冰钢架城新的历史, 让将来生活在这里的居民带来生态的感觉。
建筑外的景观水池如苏州护城河般围绕主城,达到让室内参观者不但可以欣赏美丽的园林设计, 还可以让水景倒影出建筑主体的效果。犹如“环水中的玻璃匣子”,玻璃盒子里尽是光的载体和变化。
这展馆主体是一个37米(宽)X28米(深)X8.4米(高)的长方形玻璃盒子,建筑主体由钢结构建成,没有结构墙体。
玻璃幕墙的设计分为两大部份,底层是2.4米高清玻璃,上层是六米高的重叠玻璃来控制釆光进入室内及营造晚上的灯光效果。
工作架大厦用钢架构成,材料容易获得且体现建筑本身最纯真本质的状态。它在不同时间的光照下呈现出光与装置的节奏, 它也是接待前台与走道之间的分割。
在这个总面积约1000平方米的建筑主体中约80%的面积是展厅及相关的配套功能,避免令空间出现零碎的效果。
书天梯,这些艺术装置在表达项目主题时,亦同时成为光的载体。
书架水吧全景
书架水吧特写
洽谈区全景-日景
洽谈区全景-夜景
从建筑的顶部打开洞口让釆光自然地从顶部洞囗进入空间,一个用”光来分割空间”的尝试。
人在空间里走动时,便有着光不同维度的体验,空间中以光的被分割与不被分割切换,如行走在变换的光景中。
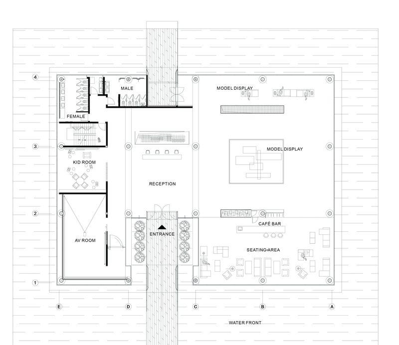
平面图
细节剖面图1
细节剖面图2
客服
消息
收藏
下载
最近



















