查看完整案例

收藏

下载
作品名称:绩溪县图书馆新馆室内设计
项目面积:3520㎡
业主单位:绩溪县图书馆
设计单位:上海界非界空间设计有限公司
项目总控:俞一卿
主笔设计:陶梓敏
设计团队:周静,郑雷敏,刘津
结构机电设计:亚瑞建筑设计有限公司
原创道具设计:上海界非界空间设计有限公司
设计时间:2017年6月
建成时间:2018年11月
建成地点:安徽省宣城市绩溪县
摄影师:刘津
文案:俞一卿,陶梓敏
绩溪:地处皖南山区,“背山面水”又独处皖赣通衢的地理位置,孕育出了极具特色的徽州文化。 “聚天地之灵气,集日月之光华,承华夏之文明,孕中华之英才”,20世纪初更被评为“国家历史文化名城”。
行走在绩溪老街上,阡阡巷洛古风悠悠,岁月悠久的马头墙环绕你左右。轻踏在老街的石板上,三步五步能见古祠,白墙灰砖斑驳着百载历香。前方,最新完工的绩溪图书馆新馆静静地矗立在那里。
从强调空间上的多元化及灵活可变性特征入手,从而替代传统“白立方”及封闭性、固态静止的图书馆陈列、管理模式:“交流与共享”是21世纪的主题,传统图书馆在空间设计上多为封闭独立的小空间。针对本项目所具有的先天优势,在室内空间设计上,采用了“大开大合”,“灵活多变”,“重点强调”的设计思想及手法,这样一来既减少了后期图书馆运营的成本,且增加了整个空间场所的视觉延展。读者轻松地就能进入不同的功能分区,形成了“集群效应”。设计要求:1. 打造具有皖南人文风情特色的,并具有城市文化地标性意义的建筑载体。
2. 馆藏设计藏书量15万册,并满足阅读坐席250个的综合性图书馆。
3. 运营必须满足国家一级图书馆评级标准,必须符合未来图书馆发展需求,必须达到智能化图书馆建设的方针与省市馆后期的线上线下的一体化建设。
下沉式集中阅读区
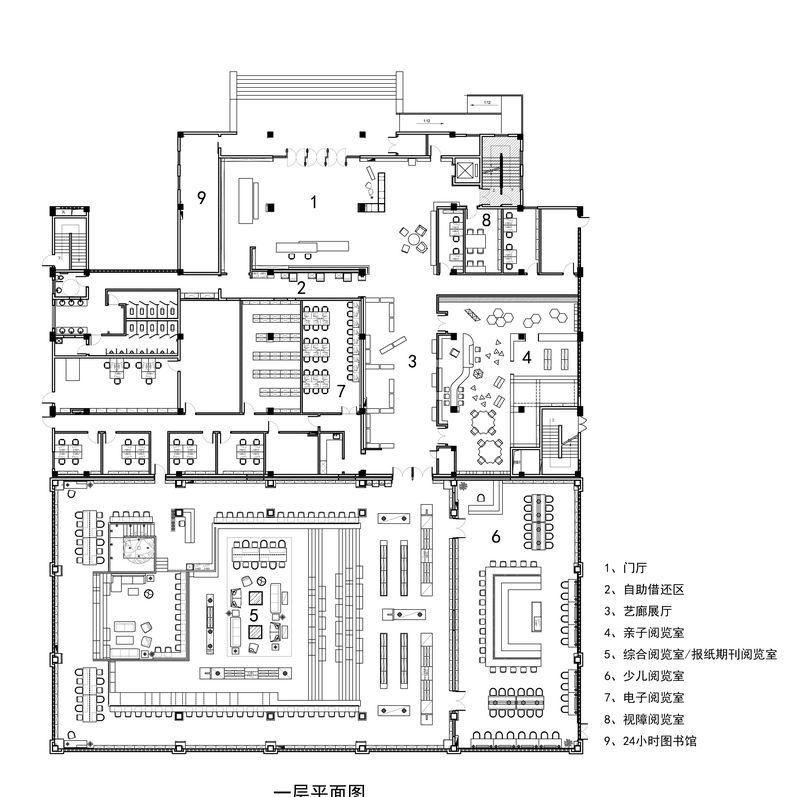
一层平面图
二层平面图
项目改造前
项目改造前
项目改造前
项目改造前
核心阅读区
核心阅读区
核心阅读区
核心阅读区
核心阅读区
核心阅读区
核心阅读区
核心阅读区
核心阅读区
核心阅读区
核心阅读区
综合阅览区/报纸期刊阅览室个性化空间
综合阅览区/报纸期刊阅览室个性化空间
综合阅览区/报纸期刊阅览室个性化空间
综合阅览区/报纸期刊阅览室个性化空间
综合阅览区/报纸期刊阅览室个性化空间
亲子阅览室
亲子阅览室
亲子阅览室
少儿阅览室
少儿阅览室
少儿阅览室
客服
消息
收藏
下载
最近































