查看完整案例

收藏

下载
项目名称:乐佩谷亲子餐厅
项目位置:中国 浙江 杭州
竣工时间:2017年12月
项目介绍:
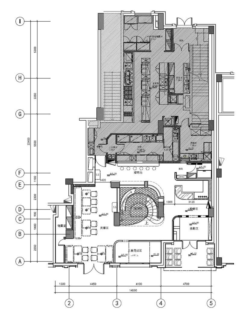
乐佩谷亲子餐厅位于中国浙江省杭州市嘉里中心内,总面积520平方,是一家以亲子模式运营的餐厅,以孩子和妈妈为主要客群。
设计要求:
以区别常规餐厅的设计风格打造适用于孩子和妈妈都喜欢的亲子餐厅。
设计概念:
本次以保证孩子和亲子设计团队充分考虑亲子餐厅运营的特殊性,以Kids play + Mums Escape= La playscape为设计概念,将整体空间定位为孩子和妈妈释放天性的乐园,在倒置层峦的峡谷、蜿蜒的河流静脉、旋转扭曲的楼梯、充满魅力的几何形状中孩子们尽情童趣玩乐,妈妈们分享愉悦时光。
设计实现:
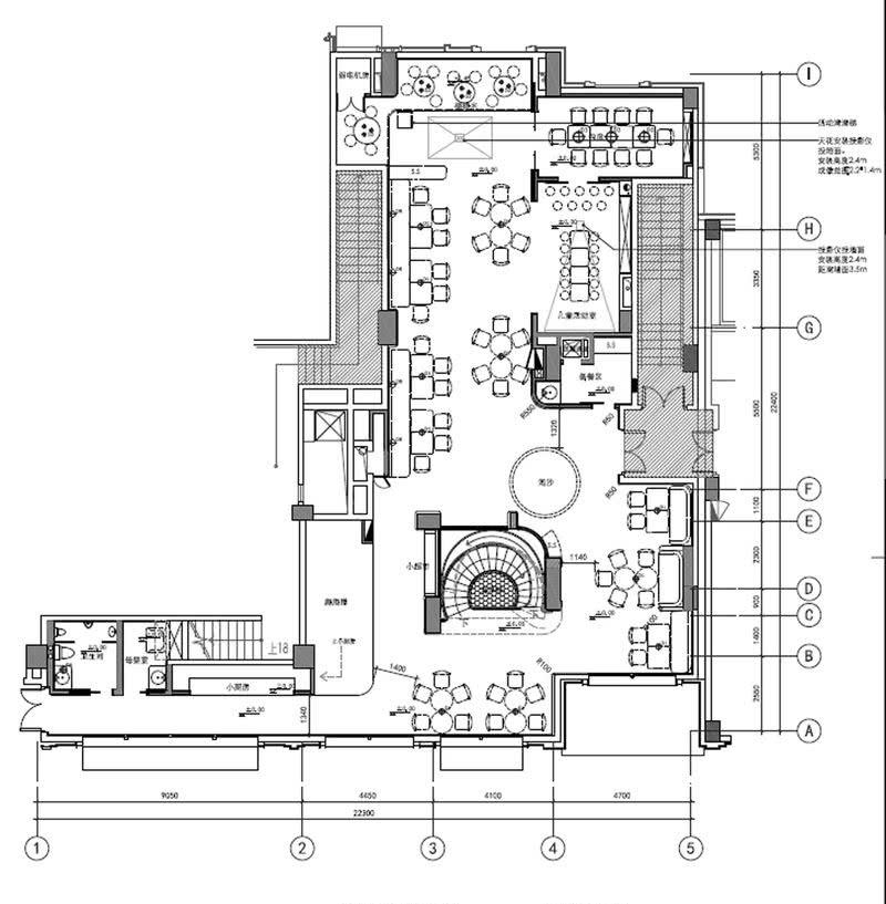
整个餐厅面积为518平方,分为上下两层,原始建筑在入口有三根结构柱,内部管道繁多,而且存在采光不足角落众多的劣势。JFR仔细研究后在功能布局上做了大胆设想,将餐厅的厨房放在一层,除去厨房空间外的其余区域设计为适用于低龄儿童的用餐和活动空间,而二层则全部设计为适合年龄稍大一点儿童的用餐区。划分后的区域有利于管道设备的改造,进一步优化原始机电设备对空间影响。
JFR利用特殊的“纽带”将一层和二层连接起来,一个优美的旋转楼梯和一条造型有趣的滑梯以DNA双螺旋的形式交错排列,贯穿一二层,并将周围区域进行围合处理,设置成海洋球玩耍区域,让小朋友们可以通过二楼的滑梯直接进入海洋球,增加趣味性。
从La playscape的定义开始,分解Play + Scape,从landscape引申到“梯田”,在层叠的形式中加入“玩转”的概念,把“梯田”倒过来,从天花延伸到墙面;将柱子和角落消化在“山谷”的造型中,既合理的优化了空间,又营造出一个 形象的“乐佩谷”,将功能房间融合在每一个贯通的山洞中,造型高低弧度各不相同,最大限度的开阔视野,不仅小朋友们可以自由的穿梭其中,妈妈们更是可以随时看到自己宝贝。
动态马卡龙色的平面设计元素及造型各异的家具也为整个空间增添了美感,由简单的几何形体交错组成,类似于拼图的图案,冰淇淋和糖葫芦造型的灯具,都使得整个空间充满童趣,符合小朋友的爱好。
客服
消息
收藏
下载
最近













