查看完整案例

收藏

下载
枫庭餐厅设计说明
项目名称:枫庭餐厅
项目地址:苏州市木渎灵岩山脚下
面 积:1132㎡
竣工时间:2017年9月16日
空间设计:曾谢/ 张泽同/ 徐聪聪
效果图设计:陈柏宇/ 刘亚
参与设计:刘昕/ 刘煜 /曾玥/ 王佳乐
项目设计说明:
本项目位于苏州市木渎灵岩山脚下,地理位置优越,周边环境优美,旨在打造一个具有地域特色且可以勾起美好回忆的就餐环境。
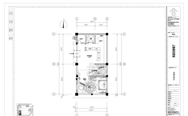
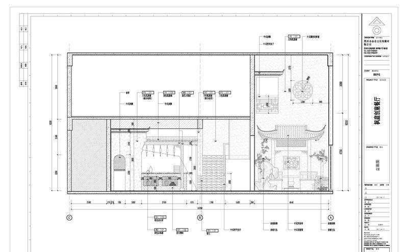
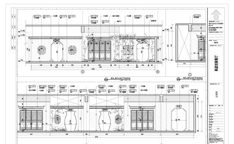
无论是在空间风格上还是平面布局上都希望能够突破传统餐厅模式,能够有属于自己的风格及文化元素符号。本项目的主题围绕”枫树”进行延伸。为了能够更好的实现业主的需求,我们以苏式建筑及苏州园林为设计灵感,在平面布局上以庭院为单元,每个包厢均以庭院的形式呈现,且都有相应的主题。不同的空间以不同的植物为主题,比如梅花、紫竹、银杏等。庭院与庭院间的分布错落有致,遵从苏州园林中的“曲径通幽”与“移步换景”。在枫庭餐厅,每一位客人都可以尽情放松身心,在闹市之中寻一片净土。
Feng Ting Restaurant Project Description
Project Name: Feng Ting Restaurant
Project Address: Lingyan Mountain in Mudu, Suzhou,China
Area: 1132㎡
Completion time: September 16, 2017
Space Designer: Zeng Xie/Zhang Ze Tong/Xu Cong Cong
3d perspective drawing : Chen Bo Yu/Liu Ya
Participator: Liu Xin/Liu Yu/Zeng Yue/Wang Jia Le
Project Design Description
This project is located at the Lingyan Mountain in Mudu, Suzhou,China. The surrounding environment of this site is really superior. The aim of these project is to create a dining environment with regional features and good memories.
No matter whether it is in the style of space or on the plan, we hope to break through the traditional restaurant model and have our own style and cultural symbol. The theme of these project is centered around the “Maple Tree”.
In order to realize the require of the owners, we are inspired of the style of the architecture of Suzhou gardens. We use the courtyard as the unit on the plan, and each space has a courtyard. Forms are presented and have corresponding themes.
Different spaces as different themes ,such as plum blossom, black bamboo and ginkgo. There are different levels between several courtyards and gardens which are follow the "quiet paths" and "transitional scenes" of Suzhou gardens. In Fengting Restaurant, each guest can relax and has a breath in the busy city.
客服
消息
收藏
下载
最近



















