知末
知末
创作上传
VIP
收藏下载
登录 | 注册有礼

古韵今生

2018/01/23 16:35:23
查看完整案例
微信扫一扫
收藏
下载
项目名称:古韵今生
设计单位:空间几何装饰HMY设计事务所
主设计师:黄茂艺
建筑面积:200㎡
主要材料:炭钛不锈钢  墙布  透光板
案例地址:广东省.潮州市
设计“从心出发,从新出发”
从心出发:去掉繁琐的制式,回归内心,简单的追求.
从新出发:保留中式的魂,注入时下人们的生活元素,用创新的手法融合中式好现代设计
古韵今生-9
古韵今生-10
古韵今生-11
古韵今生-12
古韵今生-13
古韵今生-14
古韵今生-15
古韵今生-16
古韵今生-17
古韵今生-18
古韵今生-19
古韵今生-20
古韵今生-21
古韵今生-22
古韵今生-23
古韵今生-24
古韵今生-25
古韵今生-26
古韵今生-27
古韵今生-28
古韵今生-29
古韵今生-30
古韵今生-31
古韵今生-32
古韵今生-33
古韵今生-34
古韵今生-35
古韵今生-36
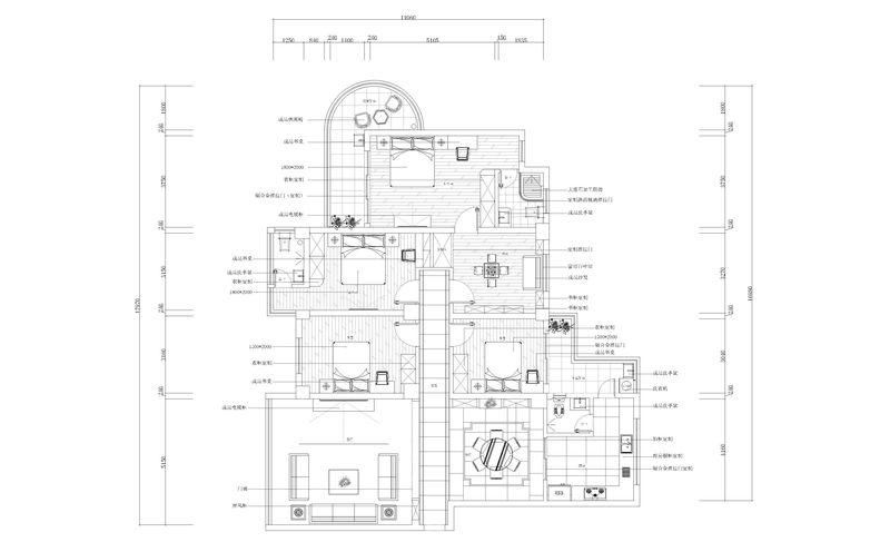
平面布置图
古韵今生-38
天花设计图
古韵今生-40
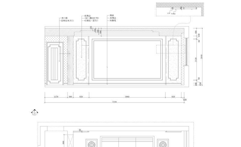
沙发背景墙
南京喵熊网络科技有限公司 苏ICP备18050492号-4知末 © 2018—2020 . All photos and trademark graphics are copyrighted by their owners.增值电信业务经营许可证(ICP)苏B2-20201444苏公网安备 32011302321234号
客服
消息
收藏
下载
最近