查看完整案例

收藏

下载
项目名称:北京中金源石材有限公司(石材展厅)
项目地址:北京
项目面积:1000㎡
设计时间:2015年
由【答案空间】:何冬林、陈晓燕共同设计。
在接到这个案子的时候我们团队经过开会探讨如何摆脱传统展厅的设计手法,高端的石材其实是一种天然的艺术品。
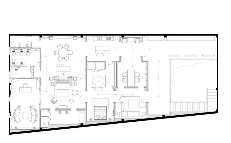
展厅分为两层,一层采用多功能的空间设计理念,从外立面到大堂让人体会到整个空间的豪华与奢侈,进入到展厅里面又是另外一种安静又高雅的艺术展厅。即小型长桌宴会、40-60人左右的酒会派对的这样一个空间作为设计的布局。我们用艺术的表现手法将产品展示给观众,我们所用到的材料以及装饰品都跟石材有密切关联的,利用废弃的锯片和大型的切割机再到一个异性的石材造型加工的过程呈现给大家,让大家了解一件精美的石材产品从荒料到完工的整个流程。在整个空间的调性来讲我们用深色的基调,在灯光的运用上我们也采用聚光的形式,该亮的地方我们用灯光给于特写,其余都是以暗调为主,让所有来到展厅的客人感觉像是来到了一个艺术空间使其静下心来欣赏每一件产品。
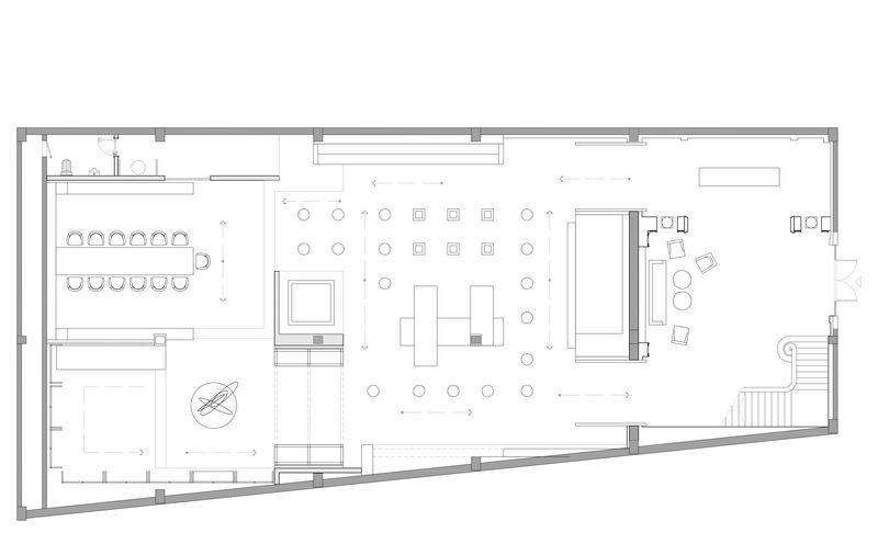
二层是一个石材展示内容丰富的地方,也是能促成交易的一个重要空间。上楼的最前端分别有设计拼花、线条、石头雕刻等样品。进入里面我们分别做了欧式跟新中式两种风格的客厅、餐厅、厨房、卧室、洗手间等区域的石材运用到空间的效果展示,在设计动线上来讲我们在整个空间里没有过多的划分出区域,基本上采用的是奢侈的空间来展示我们的产品,让客人觉得进入展厅就像回到家或去到了一个高级会所的感觉,让客人很自然舒适参观展厅的同时促成交易。
客服
消息
收藏
下载
最近





























