知末
知末
创作上传
VIP
收藏下载
登录 | 注册有礼

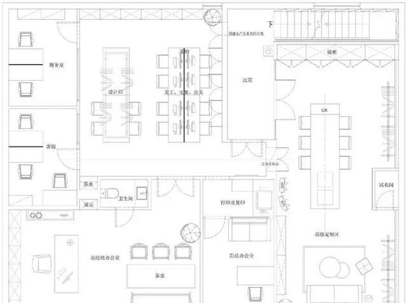
聚滢华彩国际服装办公空间

2017/10/27 11:22:13
查看完整案例
微信扫一扫
收藏
下载
是空间、材料、光影、陈设的某种和谐配比,
也可以说是人与空间互动产生的奇妙回响,
一种情绪、体验或者一个故事在这里酝酿生发
……
Ly Chere办公空间 将现代简约主义和富有情感共鸣的体验 带入其中 赋予空间新生力量 置身其中,流连忘返设计师将空间、人、饰物进行合理精致的组合 洗练的笔触 绘制出丰富动人的空间效果,流转时间
聚滢华彩国际服装办公空间-5
聚滢华彩国际服装办公空间-6
聚滢华彩国际服装办公空间-7
聚滢华彩国际服装办公空间-8
聚滢华彩国际服装办公空间-9
聚滢华彩国际服装办公空间-10
聚滢华彩国际服装办公空间-11
聚滢华彩国际服装办公空间-12
聚滢华彩国际服装办公空间-13
聚滢华彩国际服装办公空间-14
聚滢华彩国际服装办公空间-15
聚滢华彩国际服装办公空间-16
聚滢华彩国际服装办公空间-17
聚滢华彩国际服装办公空间-18
聚滢华彩国际服装办公空间-19
聚滢华彩国际服装办公空间-20
南京喵熊网络科技有限公司 苏ICP备18050492号-4知末 © 2018—2020 . All photos and trademark graphics are copyrighted by their owners.增值电信业务经营许可证(ICP)苏B2-20201444苏公网安备 32011302321234号
客服
消息
收藏
下载
最近