查看完整案例


收藏

下载
酒店, 商店, 广岛市, 日本
建筑师:CAPD
面积:403 m²
项目年份:2020
设计团队:Kazuo Monnai, Hirokazu Ohara, Dai Tsunenobu, Kazuya Masui
规划与管理:breakfast
建设:TS HAMAMOTO
City:广岛市
Country:日本
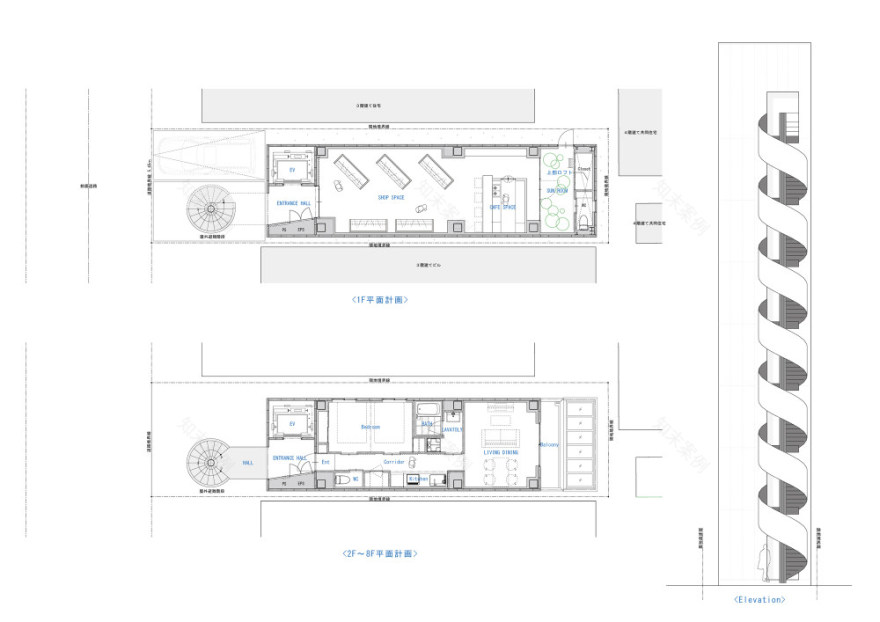
广岛中心区域有许多追赶潮流的餐厅和商店,并且计划建造更多的商店和住宿项目。建筑师出于对建筑本身盈利的考量,充分利用了约35坪的场地,它是一种市区特有的正面狭窄并向后延伸的地块,因此建筑师需要减少空间的浪费,并设计一种理性建筑,同时也让该项目成为一个区域标志。
建筑的框架本身十分简单,它与场地的形状相符,并且在小路的相反面有着一个开口,以此保证建筑向路面的隐私性,这一设计也对住宿设施至关重要。一层的商店在场地内侧设有顶灯,以此确保这里在白天有着充足的光照。
设计方面,建筑师则建造了位于建筑正面的室外避难楼梯,这也是一个现实且在法律上必不可少的设计元素。通过螺旋状阶梯以及其扶手的空间形成,建筑的无机长方体表皮被赋予了些许有机光泽,这也让它看起来更加过目难忘。
项目完工照片 | Finished Photos
设计师:CAPD
分类:酒店
语言:简体中文
阅读原文
客服
消息
收藏
下载
最近
































