查看完整案例

收藏

下载
设计机构:它山美境
位置:山东省临沂市中丘路1号
负责建筑师:奚晓鸣,林伶
设计团队:奚晓鸣,林伶,朱建,庞啸宇,王金鹏,蒋红霞,张静
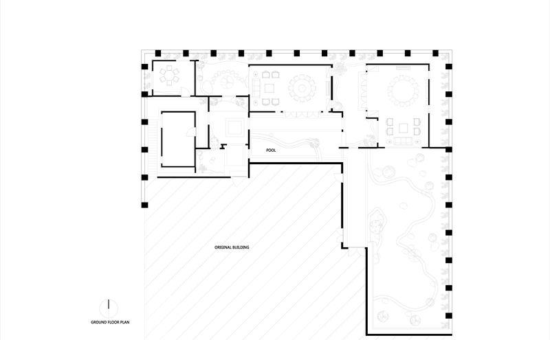
面积:570平方米
设计说明:
在被高楼环抱的都市区,如何营造一个内向型的园林,如何以小见大,如何让人在这个空间尺度上“坐的下来”,并且能够仿佛感觉置身于都市之外,是这个项目的初衷。我们采用了很多片墙来分割空间,把原本存在于建筑与建筑之间的“院”分割成更小的单位,从而形成了一系列的“院落”。这些院落和建筑的组合,强调了各个建筑独立性,保证了建筑与建筑互不影响。院和院之间,有的是能够走通的,但是视线并不通透。有的是视线能够通达,但是并非直接相连。通过这样的方法创造了空间上的景深。建筑的外墙大面积的是留白,随着时间与光线的改变,光影在这些白墙上不断的变化着,形成了不断运动的水墨画。
客服
消息
收藏
下载
最近














