查看完整案例

收藏

下载
饭范
设计团队:邓华盛 俞佳明
面积:250平米
2017年1月完工
设计说明:
在繁华热闹的街上,
明亮的黄色能够让人一眼就找到这家餐厅,
高大的落地窗让餐厅看起来通透明亮。
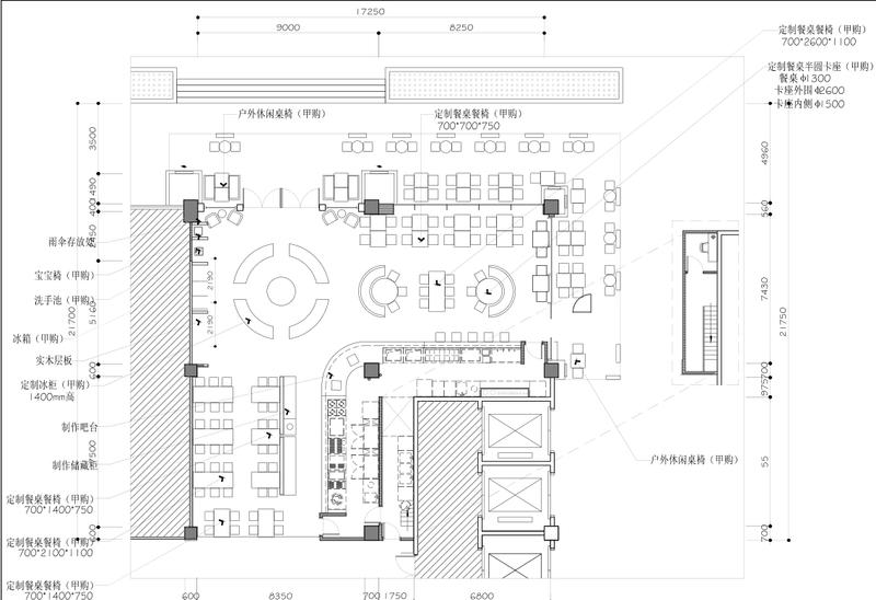
空间分为就餐区,选购区,工作区,通过地面不同的材质划分出不同的空间。就餐区的地面是由地板拼铺而成的暖黄色的地板给人温暖的感觉。
享受美食的时候,心情应该是很放松的,因此餐椅特意定制了非常舒适的皮质椅子,选择了温暖的颜色。
餐厅桌椅的造型、颜色和材质都有所区别,顾客可以根据自己的喜好选择喜欢的位置,同时吊灯的亮度、位置和颜色也经过了精心设计。
这样顶面地面的结合,营造了一种随意、轻松、舒适的氛围。
设计思维是,打造一个让顾客愿意坐很久的空间,就像回到家里的感觉一样。
选购区的地面是自流平工艺,和餐厅区分开。
从外向里看,在任何位置都能第一眼就看到选购区,圆形选购台特意设计了四个出入口,保证顾客从任何方向都能进入选购商品的售价牌也特意做成正反两面,方便顾客选购的同时能看到相关的介绍。
收银台设计在中心位置,方便购物和吃东西的人买单。人们在这个空间里,吃饭购物买单互不干扰,复杂却有序。
因为店里卖便当,因此选购区的吊顶选用了日式元素,吊顶、地板、和柱子颜色统一,让空间有了延伸感。
这样顶面地面的结合,营造了一种随意、轻松、舒适的氛围。
设计思维是,打造一个让顾客愿意坐很久的空间,就像回到家里的感觉一样。
选购区的地面是自流平工艺,和餐厅区分开。
从外向里看,在任何位置都能第一眼就看到选购区,圆形选购台特意设计了四个出入口,保证顾客从任何方向都能进入选购商品的售价牌也特意做成正反两面,方便顾客选购的同时能看到相关的介绍。
收银台设计在中心位置,方便购物和吃东西的人买单。人们在这个空间里,吃饭购物买单互不干扰,复杂却有序。
因为店里卖便当,因此选购区的吊顶选用了日式元素,吊顶、地板、和柱子颜色统一,让空间有了延伸感。
展示区打造了一个铁艺展示柜,向顾客展示了便当的历史分享了便当文化的衍生,也在一些材质上用了黑色,让色彩丰富的餐饮空间变得不会太跳跃,开放式的厨房让顾客可以看到食品的制作过程
但同时,也需要考虑开放的环境是否卫生,因此用玻璃做了隔断。
希望大家喜欢这样的设计,也喜欢上这家店的美味。
门头
设计师
就餐区
就餐区
就餐区
就餐区与便当区
就餐区
就餐区
就餐区
就餐区
就餐区
平面图
客服
消息
收藏
下载
最近














