查看完整案例

收藏

下载
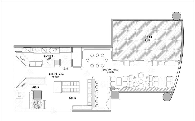
绿境—圣安娜饼屋设计说明
项目地址:广东省惠州市隆生半岛广场首层
设计主创:杨俊辉、许声鹏
设计团队:钟华杰、黄芳伶、危砚绎
项目面积:120㎡
主要材料:硅藻泥、灰黑色铁件烤漆、木烤漆、人造石、花砖、地铁砖、乳胶漆
摄影:张佳思
为圣安娜饼屋品牌升级进行全新的形象改造,规划动静区隔的全新店铺格局。设计上通过天花大面积湖水绿的应用,让空间产生耳目一新的感觉,形成独特的视觉记忆,激发顾客的愉悦购物情绪,并且引导出店内新鲜健康的食品理念。
地面黑白的花砖搭配淡蓝色的简欧柜体诠释了轻奢精简的装饰艺术风格,同时,空间内部绿白相间的雨棚设计和白色树干,营造出欧洲小店的轻松购物氛围,透着法式的浪漫风情。
天花这种介乎于绿色和蓝色之间的中间色象征着水,湖水绿成为了空间的主色调,在灯光的营造下带来干净、令人平和恬静的审美享受。简约的内饰,使100多平方米的面包店散发着清新,雅致的味道。
全新的设计旨在海量面包店的同质浪潮中凸显出圣安娜自己独特的风格,即雨棚结构、拼花的地砖、淡蓝色调道具等等。颜色、结构及装置装饰的设计都围绕着清新简欧这个核心,继承又革新了圣安娜饼屋的风格,带来很强的时尚感,与品牌的诉求完美契合。
客服
消息
收藏
下载
最近
















