查看完整案例

收藏

下载
本方案位于广东省的中山市的一个高端别墅群内的专业影音室,别墅为典型的意大利巴洛克建筑风格,业主也长期生活于国外,故此对欧式美学和对古典戏剧有着独到特的理解和极高的鉴赏能力。由于业主是一位资深的戏剧爱好者,所以我们从一开始接触案例到后面的风格选定都是从“发烧”级别去构想,在众多的设想方案当中最后为业主送方案时就交出了一个“现代演凑厅”风格的设计方案。
“现代演凑厅”顾名思义就是一个以现代风格为主体的演凑厅。每位设计师都梦想着有一个能展现自己才华的方案,这个方案的设计师也拥有同一个梦想。从多年的设计和实际操作中总结过来的经验告诉我们,一个“双手环抱”式厅堂设计,是迄今世界公认的的理想听堂设计,这也是活跃在设计界的声学界最高奖“赛宾奖”得主——马歇尔酝酿20多年的一个新理念。不规则的形状的面块组合正好让它有了用武之地。另外可以在声音强度较大区域范围内的天花上(一般会出现在舞台台口上方),在施工过程中预留出悬吊反声体的吊点位置,通过对整个剧场的声学测试的结果或在演出时某个区域声音强度过大,可以在此处悬吊一定数量的反声体对该处的声强进行反射,对该处的声音强度进行调节。
据施工图纸在施工这部分室内空间时,还将会采取以下措施:
(1)将有丰富经验剧场施工经验的施工技术人员担任本工程与声学有关的施工指导,以确保声学处理的施工质量。
(2)在施工前仔细研读图纸,重点分析关键、重点部位的节点构造做法。
(3)对相关吸声材料的选用进行必要的测试。
(4)对重点部位先组织技术人员制作构造模型,经设计、监理测试认可后方可进行大面积施工。
(5)穿越墙体或天花的管道,在其连接处四周必须嵌实严密。
(6)房间门根据要求选用隔声指数不小于35db的门,设计要求设置声闸式双道门。
(7)天棚吊顶上的风口、灯具安装必须嵌实严密。
(8)为了加强整体建声块面强度,采用全钢结构现场焊制组件的施工方法。
整个影音室设计是现代演奏厅风格,一个“双手环保”式厅堂设计,是迄今世界公认的的理想听堂设计,这也是活跃在设计界的声学界最高奖“赛宾奖”得主——马歇尔酝酿20多年的一个新理念。不规则的形状的面块组合正好让它有了用武之地,声场环境达到最佳
效果图俯视图
效果图侧视图
影音室现场图片
别墅全景
影音室现场图片
影音室现场图片
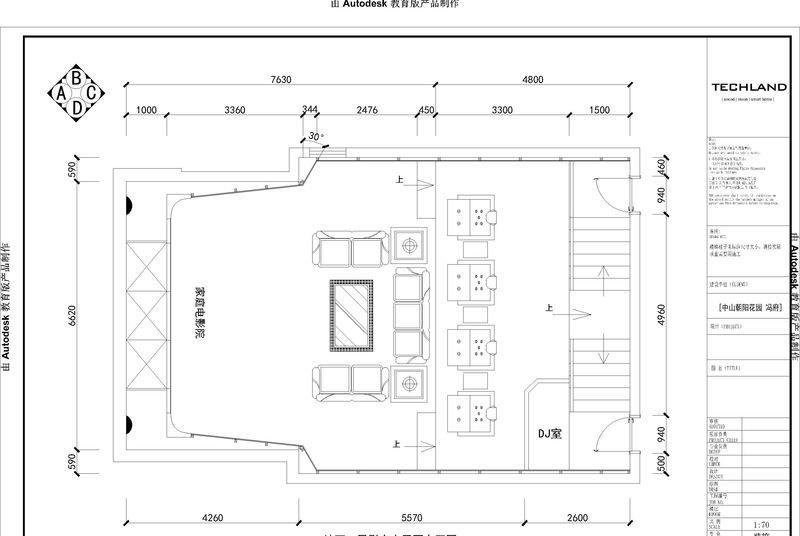
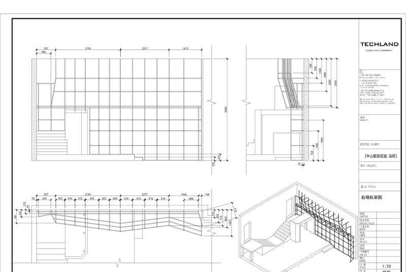
影音室施工图
影音室施工图
影音室施工图
影音室施工图
影音室施工图
影音室施工图
影音室施工图
影音室施工图
影音室施工图
影音室施工图
影音室施工图
影音室施工图
影音室施工图
影音室施工图
影音室施工图
影音室施工图
影音室施工图
影音室施工图
影音室施工图
影音室施工图
影音室施工图
影音室施工图
影音室施工图
影音室施工图
影音室施工图
影音室现场图片
影音室现场图片
影音室现场图片
影音室现场图片
影音室现场图片
影音室现场图片
客服
消息
收藏
下载
最近








































