查看完整案例

收藏

下载
项目名称:多一点不同——luolai罗莱儿童家居馆
项目地址:上海
项目面积:400平米
项目完成时间:2016年07月
设计单位:上海尚窗室内设计有限公司
主创设计:李秀儿 阮彦恺
设计说明:
“如果每个孩子的童年多一点不同,那么世界将会变得更美好”,luolai罗莱儿童家居馆空间设计围绕“多一点”的理念展开。
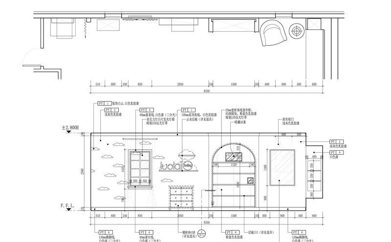
甲方对品牌风格经过新定义,希望带有一点欧式的“现代欧式风格”,“半圆弧拱形”门洞是欧式设计风格的经典元素,当设计师将“点”和“半圆弧拱形”变成二维图形,画到纸上,让它们相遇、拥抱,竟碰撞出不同的惊喜,拱形门加上圆点,使经典变得可爱、时尚和童趣,甚至有些卡通。于是,“o”和“半圆弧拱形”组合就成了luolai罗莱儿童家居馆的空间设计符号,品牌空间视觉识别符号。
本案空间规划上注重家居化的体验感受,将区域用一个个“o”和“半圆弧拱形”组合门洞分割。考虑应季与促销活动,门面特设一个主题橱窗与一个开放小橱窗;在卖场前区设一棵树型滑梯玩具区与体验区,既吸引眼球,又满足非常实用的玩具陈列体验功能;
主要体验区域有女童公主区、梦幻区、田园区,男童学院区、休闲系列区、运动区,BABY区、芯类产品区等。各区域模拟家居场景,融合产品展示,并给每个区域设定一个主题,特别是芯类区,芯类是坪效很高的产品,设计师摒弃常规用“angel”主题,天使一样纯净的整体白色调打造唯美纯洁的芯类区。
除几个产品大类外,其他均在开放区域呈现,用地面材质的不同区分开放区域不同的产品功能区,开放区域以收银台为中心,将软装饰品、文具玩具、家居卫浴及商品相对较少的几米与幼童系列安排在购物动线上,丰富而不凌乱,幼童区的房子形状,用小围合的方式划分区域感,并为开放空间增添趣味性。
本案位于上海梅龙镇广场,是一个老商场,层高有限,并且门面的设计必须保留原有商场统一的一大段金色不锈钢条,所以门面采用不对称设计,不至于看起来很压抑,并保证了LOGO在门面的比例与面积。
家居馆主要是以销售家具和家居用品为主,产品会不停的更新,空间色彩的易于搭配性很重要,设计师将空间整体色调采用易搭配的浅暖灰色,使空间色调整体统一,货柜部分采用灰粉紫色,淡淡的灰粉紫色与粉灰蓝色,是在VI识别色基础上改的饱和度更低,易于搭配,同时也达到了视觉识别性。
在设计细节上,考虑家居产品的体验性,在有条件的空间墙上做了发光的假窗,可以作为照明,同时调动氛围,并为窗帘产品的出样提供了条件。baby区贴心安排了母婴室等。
客服
消息
收藏
下载
最近





















