查看完整案例

收藏

下载
小宅空间 Elena Sidorina新作,65㎡温暖小宅,业主是一位年轻男子,
设计师的任务是布置一个宽敞、明亮、舒适的空间。由于材料和家具的色调非常平静,室内充满了轻盈感。
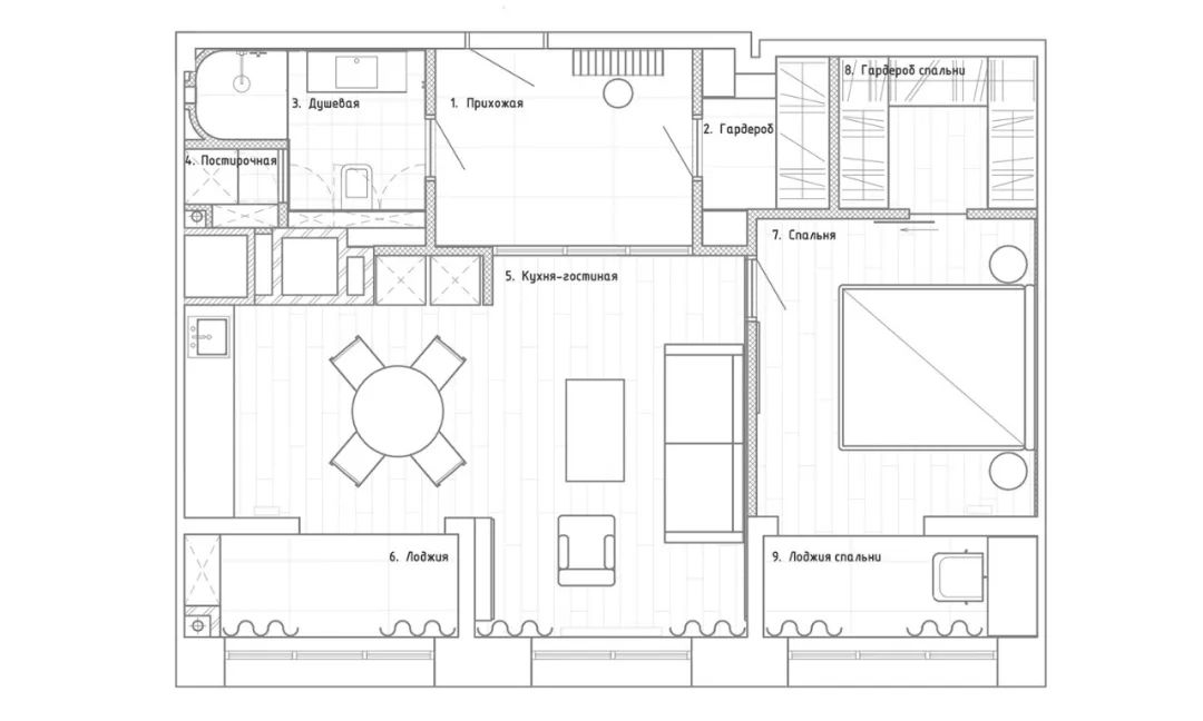
空间布局
▽
这套公寓组织了一个厨房客厅、一间卧室、两个更衣室、一个淋浴间和一个小洗衣房。空间面积不大,为了最大化空间并营造宽敞的感觉,大量的光线进入室内。空间使用了各种自然元素,木材、石材、手工制作的家具、灯具和装饰品——所有这些都使室内变得个性化。
设计师
Elena Sidorina
客服
消息
收藏
下载
最近

















