知末
知末
创作上传
VIP
收藏下载
登录 | 注册有礼

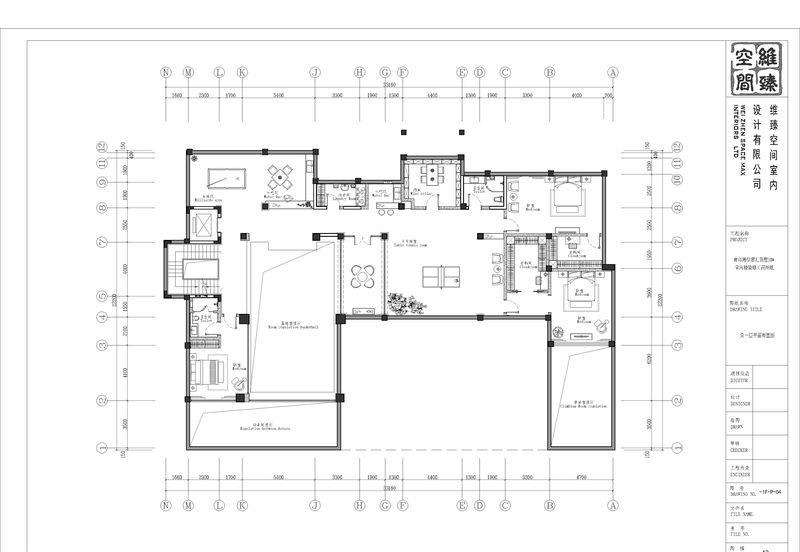
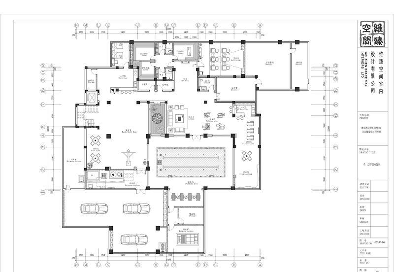
青岛海信君汇别墅 | 极简线条与原生石材的完美融合

2017/07/31 15:21:32
查看完整案例
微信扫一扫
收藏
下载
设计从建筑空间尺度和功能区域的过渡关系出发,用极减的用细线条围合勾勒并组合成若干个单元。同时也希望整个材质关系和色彩变化上是平缓过渡而舒畅。空间大量理石辅以局部原生石材的运用,使整体空间感觉更加丰富,使空间整体大而不空、厚而不重,有格调又不显压抑。
青岛海信君汇别墅 | 极简线条与原生石材的完美融合-1
青岛海信君汇别墅 | 极简线条与原生石材的完美融合-2
青岛海信君汇别墅 | 极简线条与原生石材的完美融合-3
青岛海信君汇别墅 | 极简线条与原生石材的完美融合-4
青岛海信君汇别墅 | 极简线条与原生石材的完美融合-5
青岛海信君汇别墅 | 极简线条与原生石材的完美融合-6
青岛海信君汇别墅 | 极简线条与原生石材的完美融合-7
青岛海信君汇别墅 | 极简线条与原生石材的完美融合-8
青岛海信君汇别墅 | 极简线条与原生石材的完美融合-9
青岛海信君汇别墅 | 极简线条与原生石材的完美融合-10
青岛海信君汇别墅 | 极简线条与原生石材的完美融合-11
青岛海信君汇别墅 | 极简线条与原生石材的完美融合-12
青岛海信君汇别墅 | 极简线条与原生石材的完美融合-13
青岛海信君汇别墅 | 极简线条与原生石材的完美融合-14
青岛海信君汇别墅 | 极简线条与原生石材的完美融合-15
青岛海信君汇别墅 | 极简线条与原生石材的完美融合-16
青岛海信君汇别墅 | 极简线条与原生石材的完美融合-17
青岛海信君汇别墅 | 极简线条与原生石材的完美融合-18
青岛海信君汇别墅 | 极简线条与原生石材的完美融合-19
青岛海信君汇别墅 | 极简线条与原生石材的完美融合-20
青岛海信君汇别墅 | 极简线条与原生石材的完美融合-21
南京喵熊网络科技有限公司 苏ICP备18050492号-4知末 © 2018—2020 . All photos and trademark graphics are copyrighted by their owners.增值电信业务经营许可证(ICP)苏B2-20201444苏公网安备 32011302321234号
客服
消息
收藏
下载
最近