查看完整案例

收藏

下载
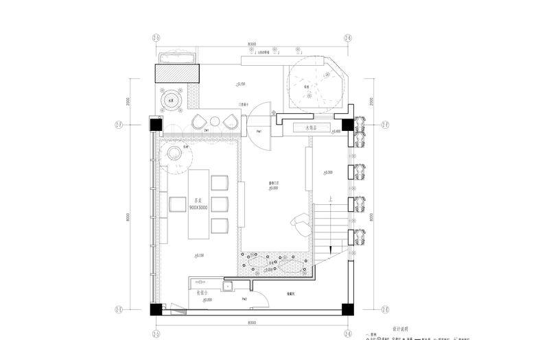
一层平面布置图
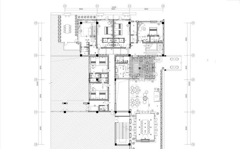
二层平面布置图
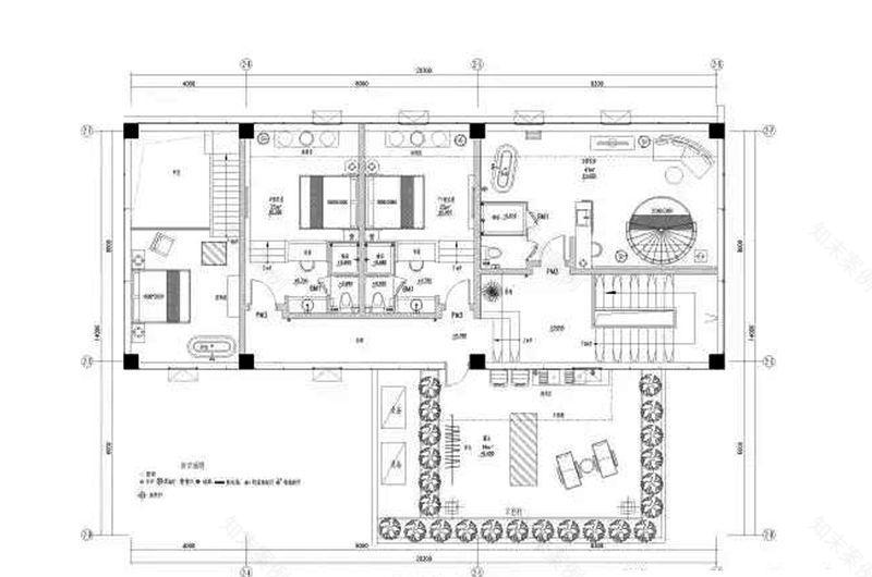
二层夹层布置图
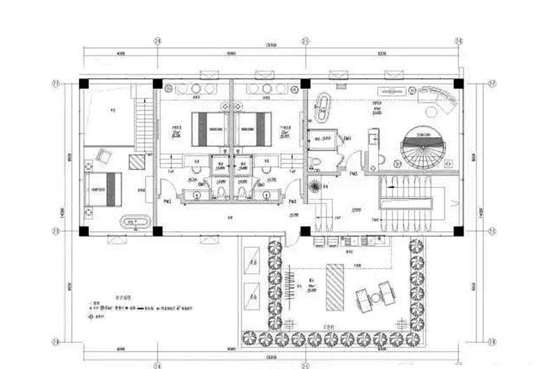
二层夹层布置图
“因有舍,而有得。”
如果没有舍去一些选择可能这两位姑娘也不会有这么美妙的缘分。
“因为心中有梦,所以不舍。”
两位姑娘把爱都倾泻在了这片如诗如画的土地,想守着这份“不舍”,把所有的梦都留在这里,留在“不舍美宿”。
如墨的墙,留“白”的木。此景满腹诗意,不舍是情怀,浓郁如墨,好似写不尽,难以言喻。
一丝一缕的想念化作白纱,承载徽州记忆的老松木变换的桌椅,悠闲坐下里的时候不妨抬头看看天,竹子别样的吊顶中的天井引入那一点的光。那是设计师对天的渴望,引入的恰到好处,是大自然的心语,诗的情。
一处一风景,黄山的风景美在山水,而这里的风景美在细节。大到布局,小到家具的选择,甚至是一些小东西的陈设都能看到设计师的在细节上的讲究。
设计不仅仅只是视觉上的体验,更多的是五感的体会,甚至还会有第六感。朱哥常提到“室内设计做的不是室内,而是做空间。”正是因为如此,两个相似又唯一的梦想和生活融入了“不舍美宿”。
只为最美的空间而生
- 项目介绍 -
项目介绍:不舍美宿
面 积:600㎡
地 址:安徽省黄山市屯溪区黎阳IN巷口
主案设计:朱寿耀
设计团队:yao design 耀.设计
主 材:原木,铁板,素水泥等
手绘表现图
手绘表现图
客服
消息
收藏
下载
最近




























