查看完整案例

收藏

下载
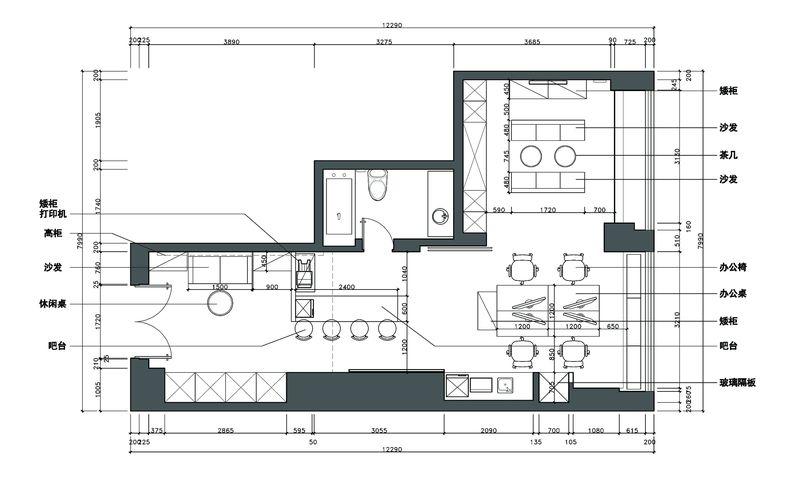
此空间为纳什空间用于客户的签约和洽谈的服务中心,在空间中,应用门厅的logo墙,加客户等候区的设计,使得空间有遮挡性,并不失办公人员的接待和仪式感,开放的办公区满足办公人员的办公功能,并且靠近窗边满足采光的最好角度,而且员工使用的水吧区靠近办公,使用方便并且还有接待和洽谈的功能使用。推拉门的后面是一间单独封闭的洽谈室,可以满足签约合同和洽谈的功能使用,并且配有电视的宣传和演示,使得客户有更多对公司的宣传和了解。
门厅
开放办公区
开放办公区
开放办公区
水吧区
水吧区
水吧区
水吧区
洽谈区
洽谈区
洽谈区
洽谈区
平面图
客服
消息
收藏
下载
最近















