知末
知末
创作上传
VIP
收藏下载
登录 | 注册有礼

武汉吉家房地产有限公司办公室设计

2017/04/12 18:11:35
查看完整案例
微信扫一扫
收藏
下载
本项目以简装为主,整体顶面为原有顶面不做粉刷,裸顶将层高更显的有所高度,地面在原有瓷砖基础上铺贴块毯,灰色为主90°错拼处理,还是延续公司的原有颜色黄色灰色白色为主。
武汉吉家房地产有限公司办公室设计-1
前厅
武汉吉家房地产有限公司办公室设计-3
开放办公区
武汉吉家房地产有限公司办公室设计-5
开放办公区
武汉吉家房地产有限公司办公室设计-7
开放办公区
武汉吉家房地产有限公司办公室设计-9
CTO经理室
武汉吉家房地产有限公司办公室设计-11
小会议室
武汉吉家房地产有限公司办公室设计-13
茶水间
武汉吉家房地产有限公司办公室设计-15
鸟瞰图
武汉吉家房地产有限公司办公室设计-17
鸟瞰图
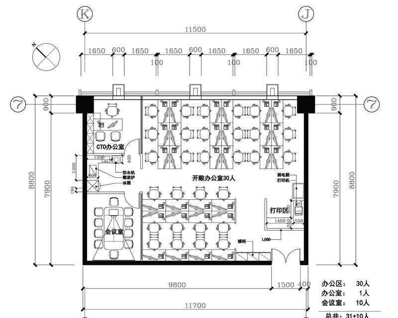
武汉吉家房地产有限公司办公室设计-19
平面图
南京喵熊网络科技有限公司 苏ICP备18050492号-4知末 © 2018—2020 . All photos and trademark graphics are copyrighted by their owners.增值电信业务经营许可证(ICP)苏B2-20201444苏公网安备 32011302321234号
客服
消息
收藏
下载
最近