查看完整案例

收藏

下载
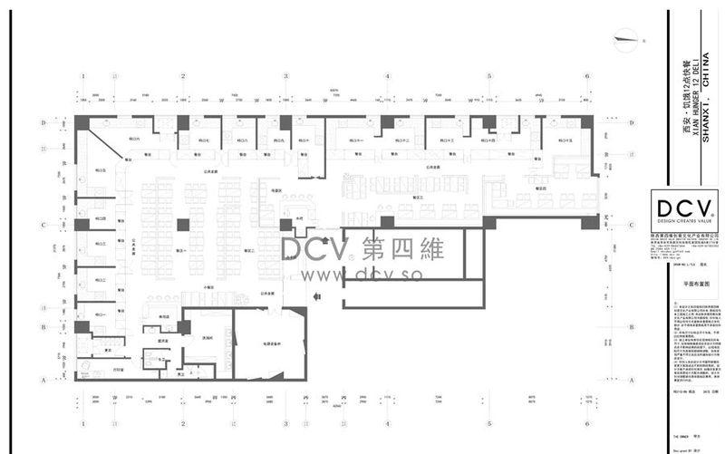
项目名称:饥饿12:00美食广场
项目地址:陕西·西安
项目类型:餐饮
项目面积:700㎡
设计风格:现代简约
设计单位:DCV第四维创意集团
设计内容:室内设计/品牌设计/软装陈设
室内设计:王咏/刘德芳/古晓媛/杨妍/张阳
品牌设计:高敏帧
软装陈设:刘德芳/刘洋姊
设计时间:2016.02
竣工时间:2016.06
主要材料:塑胶地板、老木板、乳胶漆、人造石、黑钢
设计说明:
本项目位于丈八一路与锦业路交汇,绿地领海大厦A座2层。周围有大型写字楼以及会展中心。
随着时代与生活方式的不断发展的今天,公众、消费者以及商业的客户要求越来越多,更加注重细节,尊重消费需求且细心的满足个性要求。而符合客户需求并让他们惊喜的关键在于:氛围、设计和融合。
如何在这个有限的空间(餐厅内部)和有限的时间(就餐时间)内让感官(视、听、味、嗅、触)得到尽可能的满足,成为设计师们关注的核心。在众多的上班族中,吃饭综合症已经成为每天午餐时刻的头疼事:粗糙嘈杂的餐饮环境、快餐速食的用餐节奏、家庭式小作坊的卫生条件...就连午间用餐之时也无法让神经放松一刻。
此次项目愿在打造快餐综合体,给人以明快、简洁、雅致、放松的整体印象,在空间设计上,设计师注重餐饮空间布局和功能划分的舒适及合理性;明亮的自然光线和柔和的照明灯光相互交错,更能营造一种舒心宁静的就餐环境。在色彩的运用上,同样采用了清新且明亮的色彩,以简洁的大色块方式出现在餐厅中,通过视觉效果传达轻松的感受,更好的舒缓上班族们的压力。在统一的风格中展现多种表现的形式,创造空间多变的调调,是这次的设计主题。
西安服务还行的美食小吃-饥饿12点美食广场主题餐厅设计(绿地领海)
西安服务还行的美食小吃-饥饿12点美食广场主题餐厅设计(绿地领海)
西安服务还行的美食小吃-饥饿12点美食广场主题餐厅设计(绿地领海)
西安服务还行的美食小吃-饥饿12点美食广场主题餐厅设计(绿地领海)
西安服务还行的美食小吃-饥饿12点美食广场主题餐厅设计(绿地领海)
西安服务还行的美食小吃-饥饿12点美食广场主题餐厅设计(绿地领海)
西安服务还行的美食小吃-饥饿12点美食广场主题餐厅设计(绿地领海)
西安服务还行的美食小吃-饥饿12点美食广场主题餐厅设计(绿地领海)
西安服务还行的美食小吃-饥饿12点美食广场主题餐厅设计(绿地领海)
西安服务还行的美食小吃-饥饿12点美食广场主题餐厅设计(绿地领海)
西安服务还行的美食小吃-饥饿12点美食广场主题餐厅设计(绿地领海)
西安服务还行的美食小吃-饥饿12点美食广场主题餐厅设计(绿地领海)
西安服务还行的美食小吃-饥饿12点美食广场主题餐厅设计(绿地领海)
西安服务还行的美食小吃-饥饿12点美食广场主题餐厅设计(绿地领海)
西安服务还行的美食小吃-饥饿12点美食广场主题餐厅设计(绿地领海)
西安服务还行的美食小吃-饥饿12点美食广场主题餐厅设计(绿地领海)
客服
消息
收藏
下载
最近
























