查看完整案例

收藏

下载
设计师介绍
——胡冬
毕业于四川美术学院,2005年从事室内设计至今,致力于对展厅、餐饮、办公空间及会所客户提供最佳解决方案,凭借着丰富的设计经验和不断创新的探索精神,设计专注于营造具有丰富人文内涵、与自然和谐共生的独特空间。
项目介绍
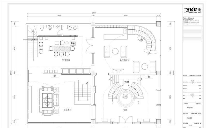
项目名称:梵豪佩登栏杆高端定制中心
项目面积:326平米
完工时间:2015.12
设计单位:重庆优创装饰设计有限公司
设计师:胡冬
主要材料:钢材、石材、墙纸、橡木、文化石、仿古砖。
项目设计说明
前言
展示体验空间作为一种特定的环境空间,除了满足纯功能需求外,更需要传达某种主题信息来满足人们精神文化、视觉感受、环境体验的需要。通过传达深层的主题信息,反映出特定的文化观念和生活方式,创造出与产品相互呼应的空间环境印象。
本案的设计虽由四个风格异域的展示空间组成但设计师遵循统一与整体是设计最基本的要求这一主旨,在统一中找变化,变化不背离统一的原则下进行设计。首先是功能分区的设计,无论是店面还是展厅或者是任何场地,都一定要有合理的功能性,设计师根据产品的定位和特性不同把展厅划分为形象展示区、欧式展示区、英式乡村展示区和中式展示区。每个单独的空间由挑空的两层空间组成,采用钢结构构建的二层空间不仅延伸了视线,更多的增加了产品的展示空间。整体环形的动线穿插各个空间,使每个空间既独立又相互联系。每个展示区风格元素的定位与产品特性融合,通过在空间中设置中式的茶饮区域、英式的红酒品饮区域,同时包括选用的材质、颜色、造型及一些细节上的装饰等,恰到好处的向客户传达出实景样板直观的画面,营造身临其境的体验感。
客服
消息
收藏
下载
最近























