知末
知末
创作上传
VIP
收藏下载
登录 | 注册有礼

长泰西郊法式宫廷浪漫高贵风设计装修案例

2016/07/23 10:10:09
查看完整案例
微信扫一扫
收藏
下载
长泰西郊别墅·法式宫廷的浪漫高贵
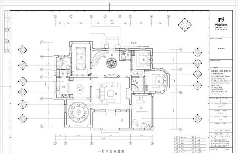
长泰西郊法式宫廷浪漫高贵风设计装修案例-1
长泰西郊别墅一期25号
设计师:韦清华
客户信息:程小姐
格调定位:法式宫廷
设计说明:业主会经常到世界各地游玩,受西方文化影响,喜欢西方的生活方式更怀念中国独有的传统文化,注重表现对艺术情景的再现以及对现实场景的描绘探索新的形式、色彩,以及强烈的氛围感受和精致的细节体现,让华丽 尊贵 高雅 绽放其中 。
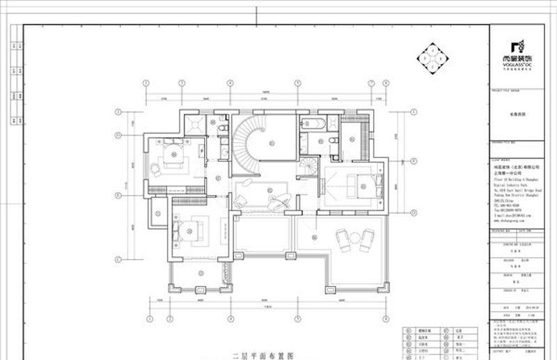
长泰西郊法式宫廷浪漫高贵风设计装修案例-7
长泰西郊法式宫廷浪漫高贵风设计装修案例-8
长泰西郊法式宫廷浪漫高贵风设计装修案例-9
长泰西郊法式宫廷浪漫高贵风设计装修案例-10
长泰西郊法式宫廷浪漫高贵风设计装修案例-11
南京喵熊网络科技有限公司 苏ICP备18050492号-4知末 © 2018—2020 . All photos and trademark graphics are copyrighted by their owners.增值电信业务经营许可证(ICP)苏B2-20201444苏公网安备 32011302321234号
客服
消息
收藏
下载
最近