知末
知末
创作上传
VIP
收藏下载
登录 | 注册有礼

上海长泰西郊别墅 | 法式宫廷浪漫,韦清华设计佳作

2016/05/17 09:50:38
查看完整案例
微信扫一扫
收藏
下载
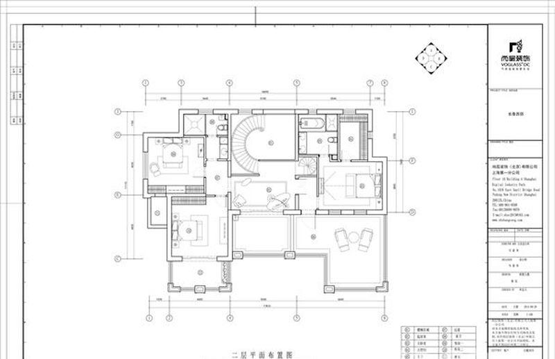
长泰西郊别墅一期
上海长泰西郊别墅 | 法式宫廷浪漫,韦清华设计佳作-1
设计师:韦清华
楼盘地址: 松江区泗砖南路1500号
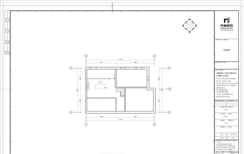
上海长泰西郊别墅 | 法式宫廷浪漫,韦清华设计佳作-4
客户信息:程小姐
格调定位:法式宫廷 业主会经常到世界各地游玩,受西方文化影响,喜欢西方的生活方式更怀念中国独有的传统文化,注重表现对艺术情景的再现以及对现实场景的描绘探索新的形式、色彩,以及强烈的氛围感受和精致的细节体现,让华丽、尊贵、高雅绽放其中 。
上海长泰西郊别墅 | 法式宫廷浪漫,韦清华设计佳作-7
上海长泰西郊别墅 | 法式宫廷浪漫,韦清华设计佳作-8
上海长泰西郊别墅 | 法式宫廷浪漫,韦清华设计佳作-9
上海长泰西郊别墅 | 法式宫廷浪漫,韦清华设计佳作-10
南京喵熊网络科技有限公司 苏ICP备18050492号-4知末 © 2018—2020 . All photos and trademark graphics are copyrighted by their owners.增值电信业务经营许可证(ICP)苏B2-20201444苏公网安备 32011302321234号
客服
消息
收藏
下载
最近