查看完整案例

收藏

下载
项目概括:
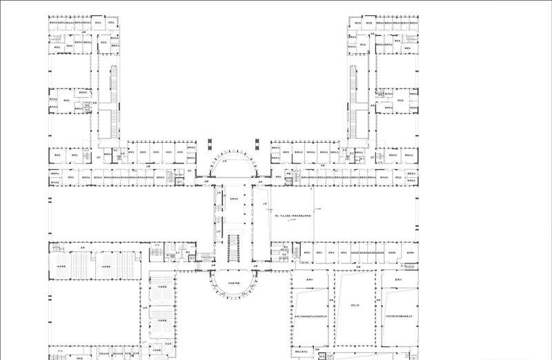
天津大学新校区水土建教学组团A——综合楼位于天津大学新校区(津南校区),项目坐落于新校区南侧,建设用地东侧为校十路,南侧为校六路,西侧为学生生活组团,北侧为校五路,北面与图书馆隔核心岛景观河相望。
综合楼由建工学院和环境学院组成。总建筑面积38838.67平方米,地上建筑面积33408.44平方米 ,地下建筑面积5430.23平方米。
设计理念:
“知行合一”
颠覆既往大学校园将教学区、生活区、运动区明确分区功能规划模式,以学院为单位将教学楼和学生生活区融合成基本单元体,有机生长的各单元体长构成大校园。在每个单元体的教学楼和生活区之间导入属性暧昧的混沌空间,实现空间的有机过渡,完成行为的自然转换。建筑围合、半围合的广场、庭园为师生提供学习、生活等行为交流及活动的场所,并通过多层次交流环境的潜移默化,营造学生学习、生活、交往等社会活动为一体的寓教于乐的校园空间。
“自然、开放空间”
经历半个多世纪形成的老校区校园是留在校友脑海中那抹不去的印象,试图营造那亲切、熟悉的场所空间,以适应北方寒冷地区的气候特征。整合各种类型的实验室,将重荷载、要求搬运出入便利的土木、环境实验室布置在一层、二层,其上屋顶构成一个设置庭院、绿化的人工底盘。三层以上南北布局布置教学及教研室,建筑之间留出足够间距形成空中庭院,在充分满足自然通风、日照的同时,为师生提供一个亲近阳光、雨露的室外交流活动场所。
“新与旧”
新校区教学楼将延续使用现存建筑给人深刻印象的“过火砖”为基本材料,局部植入素混凝土,以“土木”的表现力塑造一个稳重、简约、具有传承和记忆的建筑,底层架空的柱廊则创造出丰富的混沌空间和富有趣味的光影变化,让师生感受到时光的渐逝。
“室内外空间交融”
通过中间共享中庭,连接南北两个半围合庭院。经过南广场、南门厅,一个舒缓的大台阶将人引向建筑的主要使用层面三层,两侧强调竖线肌理的墙面上布置了学院的历代教育家像,成为一个富有教育意义的空间。在此可重温双甲子历史和著名学科教育家及研究成就,瞻仰先贤睿智,激励学子们实事求是、求真务实。
客服
消息
收藏
下载
最近



























