查看完整案例

收藏

下载
均衡规范的建筑理念,人工修饰的自然风情,布局的统一和协调性彰显刚与柔的完美结合,气势磅礴的石材装饰效果,这是法式宫廷风格的浑然天成的奢华象征。
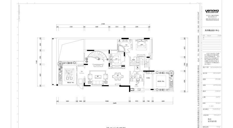
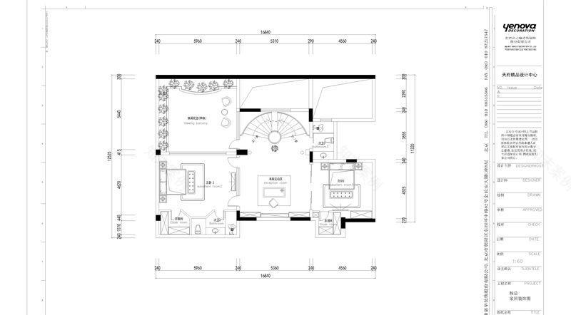
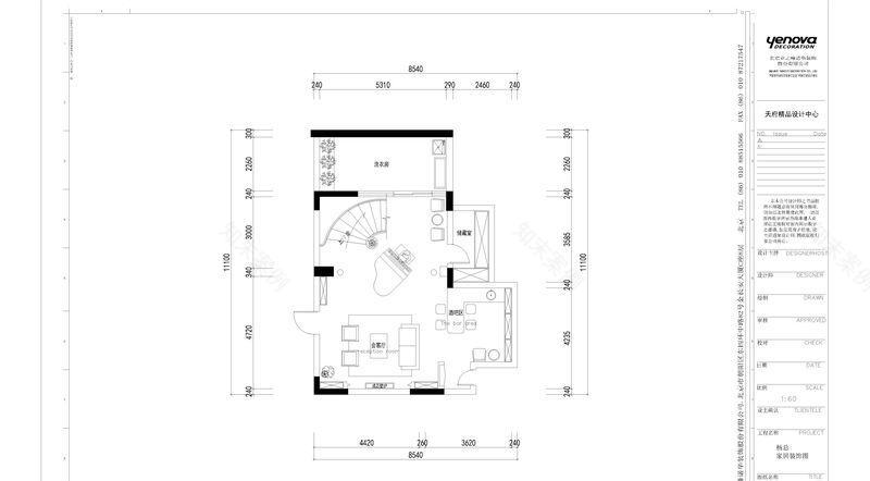
在功能结构方面进行空间重组,以满足更为人文的合理布局思路,把原有楼体位置从新规划采用一个独立房间作为旋转楼梯的连接,瞬间让整个空间气派十足。色彩质地采用芬琳艺术涂料系列,时尚而浓郁色彩既浪漫又富有时代的印记。
整个居室处处都流露着路易时期的繁华与奢靡,每一处空间都是精雕细琢,以精湛的雕花工艺去延续每一个历史的符号。整体避开暗沉的色泽,摆脱沉重之气,令人眼前一亮。细看之下,拥有精美的雕刻工艺,时尚大气的外观造型,散发着浓郁的法式古典气息。餐厅秉持典型的法式风格搭配原则,餐桌和餐椅均为金色,表面略带雕花,配合扶手和椅腿的弧形曲度,显得优雅矜贵,而在水晶吊灯、落地灯、瓶插百合花的搭配下,浪漫清新之感扑面而来,优雅、高贵和浪漫。
家具装饰使用淡粉色,薄荷绿色,紫罗兰色等淡雅且富有强烈色彩冲突的颜色,在配饰的选择以鎏金和水晶灯材质为主,凸显华贵气息,帷幔和窗帘的装饰,家具追求轻盈纤细的质感。
客服
消息
收藏
下载
最近















