查看完整案例

收藏

下载
设计说明
一、案例信息:
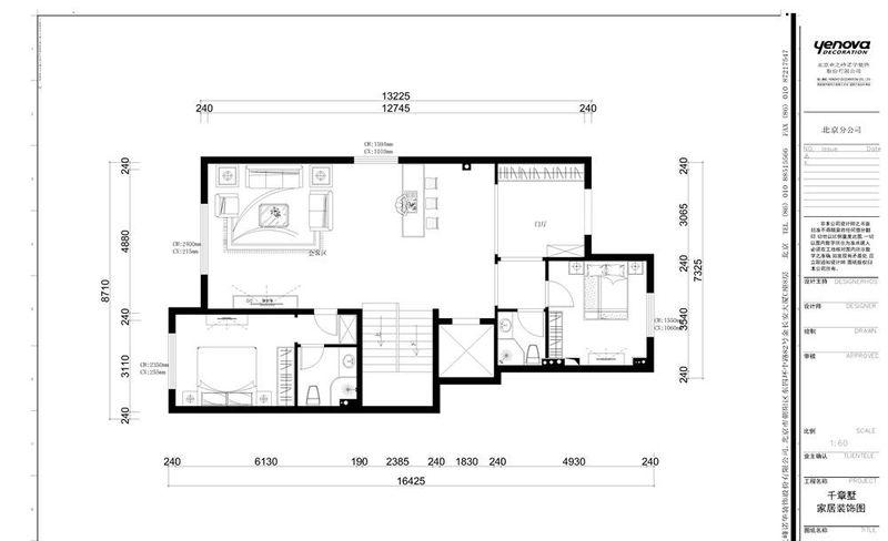
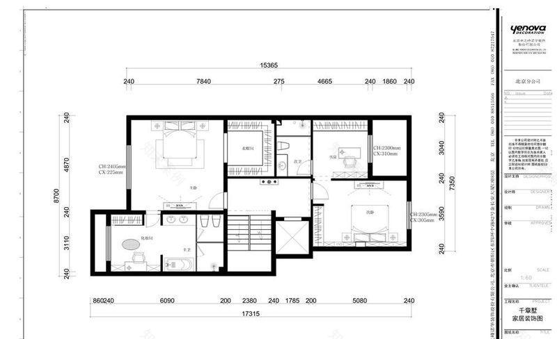
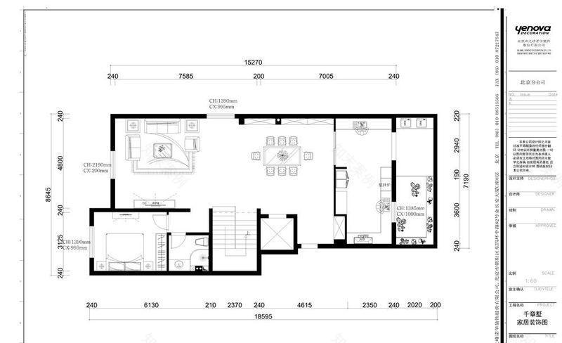
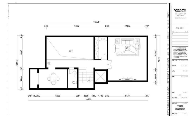
小区名称:千章墅 建筑面积:500㎡
户型:联排别墅 工程预算:30万元
主材预算:45万元 风格定位:现代简约风格
案例主题:书香的时尚感
二、设计说明:
业主30岁出头,热爱读书,对时尚有自己独到的见解,喜欢现代创意也喜欢古朴的中国风,本方案是以现代简约为主题,点缀中式元素,使整个空间相互呼应,现代简约风格的基本特点就是简洁、实用,体现一种文化品味。现代简约在意功能的实用性,也体现业主的生活品位以及个性。布局上满足业主需求,主要装修材料以胡桃木,壁纸为主,以黑胡桃木、素色壁纸来装饰墙面的景点。给人一种视觉冲击之感。
客厅是主人品味与地位的象征,也是会客的主要场合,电视背景墙采用大理石做的竹子造型,既简单又大方,再加上色彩为素色的壁纸,沙发背景墙只做了简单的处理,用石膏板衬底,再镶上黑胡桃木色花格,做了一个灯槽效果,配上顶部照下来的灯光,两面背景墙把客厅瞬间装饰起来。在客厅再摆上一盆绿植,更增加客厅的生机与活力。
吧台的作用不只是会客喝酒的地方,不仅要美观,更重要的实用性和情调,顶部做了回字形吊顶,在吧台的墙面上挂了一幅简单的荷叶水墨画,吧台上可以摆放一些饰品,暖黄色的灯光照下来更能增加吧台的情调。
书房是业主常用的一个空间,书架用白混油色调,每个格子里都有暖黄色灯带的照射,把沉闷的书房也变得有活力,像有生命一样跳跃。
根据客户书多的具体需求,在地下二层做了两面通顶的黑胡桃木书柜,加上暖黄色的斜铺地砖,再搭配墙上素色壁纸和水墨画,整个空间就像时间静止了一样,让人叹为观止,给人一种思考的冲动!
简单实用是现代人追求的基本特点。配上中式风格让人感觉和谐,饰品和绿植使整个空间更增加其色彩,使人在家里更容易放松,也满足追求个性与潮流的乐趣。
客服
消息
收藏
下载
最近





















