查看完整案例

收藏

下载
“园中园,楼中楼”
设计保留了现状既有建筑,将新建建筑布置在基地东南角,取“紫气东来”之意。设计创新地将两栋既有小别墅与新建建筑有机结合在一起,使现代与古典相互交融。设计首先并非考虑建筑形象,而是创新地将中国古典园林设计理念引入,先造园,再筑房,将原来较开放的庭院空间分解成多个主体院落,同时引入曲折的步行系统,将建筑与环境完美地结合在一起,形成步移景异的空间效果,增加了建筑空间的趣味性和体验感。
设计者:
俞挺、丁顺
实景照片
实景照片
实景照片
实景照片
实景照片
实景照片
实景照片
实景照片
总平面图
一层平面图
二层平面图
三层平面图
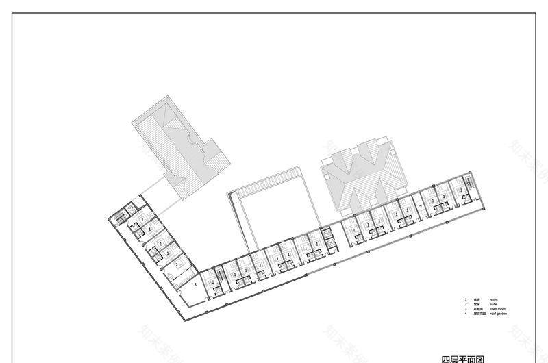
四层平面图
五层平面图
东立面图+西立面图
1-1剖面图
大样图
客服
消息
收藏
下载
最近



















