查看完整案例

收藏

下载
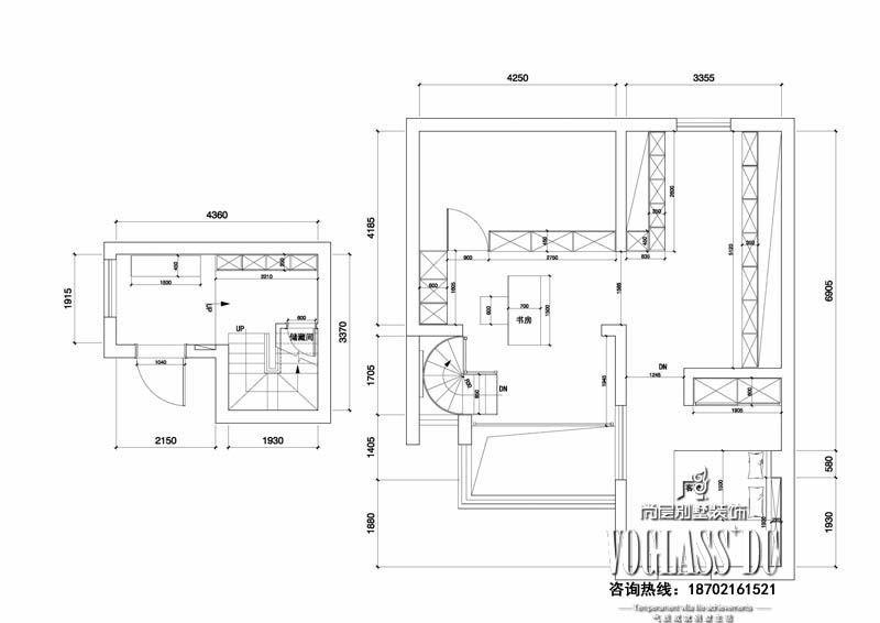
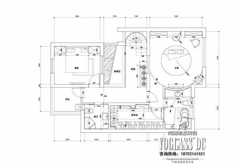
设计说明:简洁、通透、功能区域清晰是本案规划的基本原则。原有的4层楼面对区域做了相对简单的划分,相对的功能需要在此基础之上进行修改和补充,毕竟商品房是无法做到空间个性化。“简洁”这个词是简单而且具有内涵的,要在空间中实现简洁化,我想每个设计师都会碰到一定的难处。同样的,我们在本案中碰到的问题很突出,首先是空间的多变性,还有就是生活元素多样性。因此我们将相应的功能和元素进行归纳,例如将楼梯与客厅结合,省去独立的楼梯间,楼梯也起到了一定的装饰作用,同时它有是个体,具有明确的功能性。在每个楼层中尽量不作过多的墙体分隔,以免空间压抑。我们保留了门厅的双层挑高,简洁的玻璃栏杆可以让它与二楼空间更多联系,二楼餐厅与三楼庭院之间设计了一个底部透明鱼缸,不但增加了空间通透性,而且也将光线作为一个重要的设计元素,水和鱼的灵动赋予空间独有的生命。三楼与四层阁楼之间挑空的阳光庭院是该空间的重点,大面积的光线进入强调了空间感,也有了更多的连续通透性。
项目地址:上海浦东
项目名称:巍廉伍拾式 / Loft 54
建筑面积:220平米
装修规划:现代简约风格
设计师:尚层装饰上海第一分公司设计师赖仕锦作品
【上海尚层别墅装潢】巍廉伍拾式 / Loft 54现代简约风格设计效果图,尚层装饰设计师赖仕锦作品鉴赏!
【上海尚层别墅装潢】巍廉伍拾式 / Loft 54现代简约风格设计效果图,尚层装饰设计师赖仕锦作品鉴赏!
【上海尚层别墅装潢】巍廉伍拾式 / Loft 54现代简约风格设计效果图,尚层装饰设计师赖仕锦作品鉴赏!
【上海尚层别墅装潢】巍廉伍拾式 / Loft 54现代简约风格设计效果图,尚层装饰设计师赖仕锦作品鉴赏!
【上海尚层别墅装潢】巍廉伍拾式 / Loft 54现代简约风格设计效果图,尚层装饰设计师赖仕锦作品鉴赏!
【上海尚层别墅装潢】巍廉伍拾式 / Loft 54现代简约风格设计效果图,尚层装饰设计师赖仕锦作品鉴赏!
【上海尚层别墅装潢】巍廉伍拾式 / Loft 54现代简约风格设计效果图,尚层装饰设计师赖仕锦作品鉴赏!
【上海尚层别墅装潢】巍廉伍拾式 / Loft 54现代简约风格设计效果图,尚层装饰设计师赖仕锦作品鉴赏!
【上海尚层别墅装潢】巍廉伍拾式 / Loft 54现代简约风格设计效果图,尚层装饰设计师赖仕锦作品鉴赏!
【上海尚层别墅装潢】巍廉伍拾式 / Loft 54现代简约风格设计效果图,尚层装饰设计师赖仕锦作品鉴赏!
【上海尚层别墅装潢】巍廉伍拾式 / Loft 54现代简约风格设计效果图,尚层装饰设计师赖仕锦作品鉴赏!
【上海尚层别墅装潢】巍廉伍拾式 / Loft 54现代简约风格设计效果图,尚层装饰设计师赖仕锦作品鉴赏!
【上海尚层别墅装潢】巍廉伍拾式 / Loft 54现代简约风格设计效果图,尚层装饰设计师赖仕锦作品鉴赏!
【上海尚层别墅装潢】巍廉伍拾式 / Loft 54现代简约风格设计效果图,尚层装饰设计师赖仕锦作品鉴赏!
【上海尚层别墅装潢】巍廉伍拾式 / Loft 54现代简约风格设计效果图,尚层装饰设计师赖仕锦作品鉴赏!
【上海尚层别墅装潢】巍廉伍拾式 / Loft 54现代简约风格设计效果图,尚层装饰设计师赖仕锦作品鉴赏!
【上海尚层别墅装潢】巍廉伍拾式 / Loft 54现代简约风格设计效果图,尚层装饰设计师赖仕锦作品鉴赏!
【上海尚层别墅装潢】巍廉伍拾式 / Loft 54现代简约风格设计效果图,尚层装饰设计师赖仕锦作品鉴赏!
【上海尚层别墅装潢】巍廉伍拾式 / Loft 54现代简约风格设计效果图,尚层装饰设计师赖仕锦作品鉴赏!
客服
消息
收藏
下载
最近





















