查看完整案例

收藏

下载
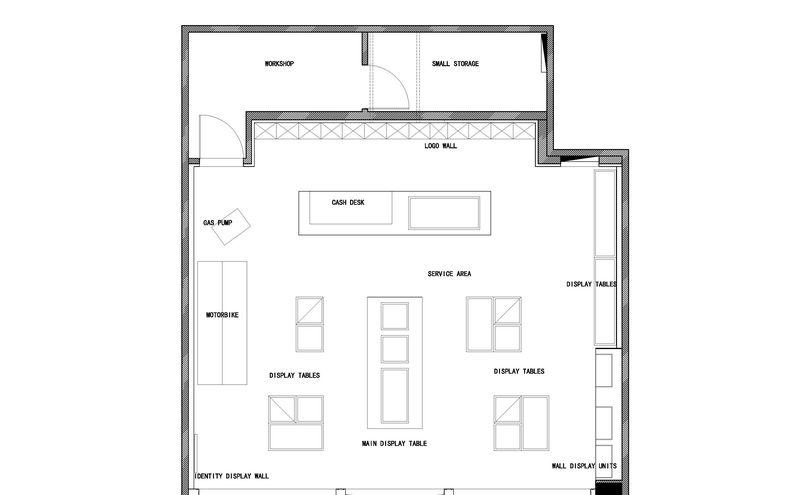
挑战与创造一个在中国前所未有的品牌身份和制定品牌架构,MRT决定利用现有视觉形象的一些基本元素,黄金和白银的组合叠加在黑色上,温暖的砖、再生木材、热轧钢和铆接金属片与精致的珠宝箱一起并列突出了产品本身的吸引力,保留手工制作精美饰品品牌的真实性。
凭借最引人注目的骷髅图案作为商店的主要背景,利用金属激光切割制作,它大约高2米,俯看产品像好奇的顾客一样。车库般的氛围与环境被重新高端定位,不失品牌的审美和本质,环境氛围使人对品牌和产品感到好奇。
专卖店的设计成功实施在多个地点,包括北京大悦城和三里屯。
客服
消息
收藏
下载
最近













