查看完整案例


收藏

下载
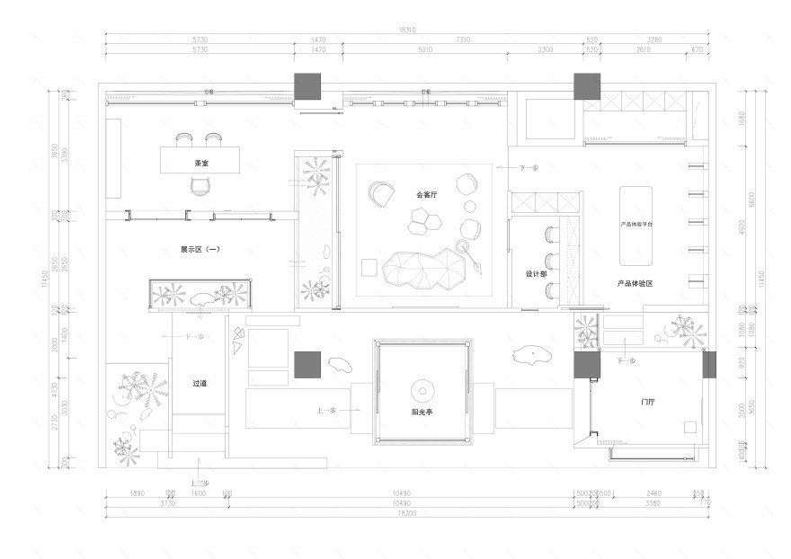
项目名称:入園丨威克纳丨帕斯沃丨门窗展厅
项目地点:合肥丨红星美凯龙
設計机构:东石空间设计
项目面积:210㎡
設計联合創始人&创意总监:陈硕
設計师:白开水
时间:2023年9月
门窗作为一种介质,是内与外关系,是人与人,人与物,物与物之前看与被看的动势,是边界与无界隐与融的两面体,是失焦与聚焦的复杂体。 入《園》
项目名称:入園丨威克纳丨帕斯沃丨门窗展厅
项目地点:合肥丨红星美凯龙
設計机构:东石空间设计
项目面积:210㎡
設計联合創始人&创意总监:陈硕
設計师:白开水
时间:2023年9月
客服
消息
收藏
下载
最近


























