查看完整案例


收藏

下载
管理身材从不是肤浅,而是对自我的尊重和生活的敬仰,做一个快乐丰盛且自由的人。
Management of the body is never superficial, but respect for self and life, to be a happy and rich and free person。
致 普拉提
薄小飞
|采访撰文
商业空间 | 项目类型
李 刚 | 设计师
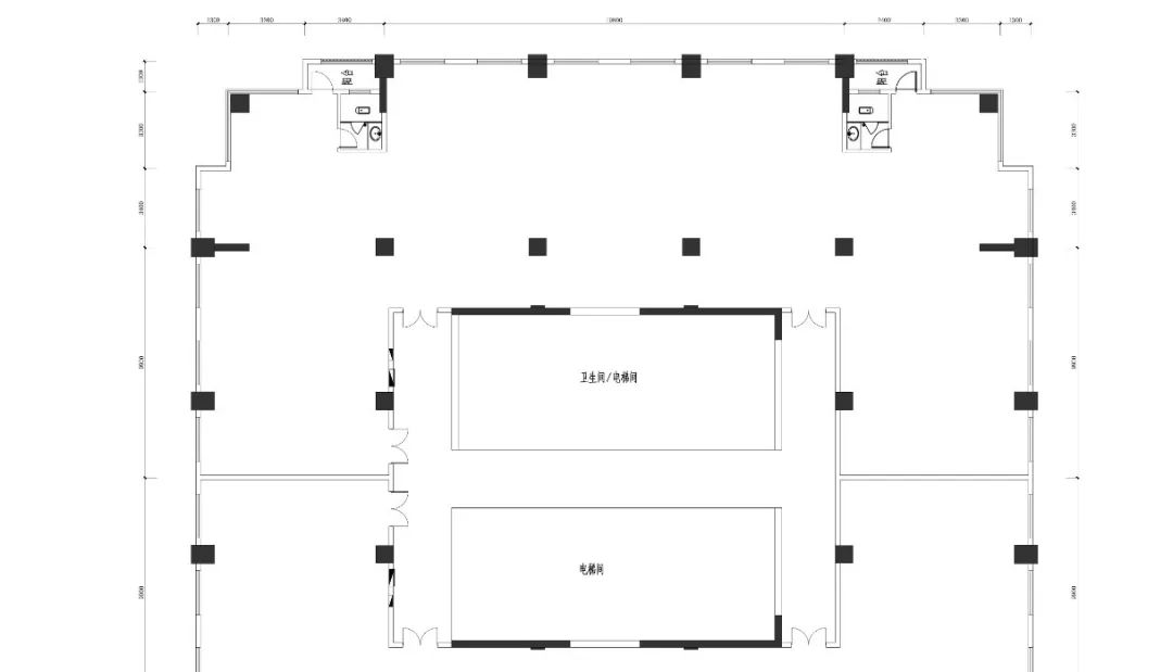
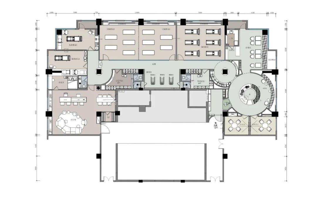
▼平面布局图 FLOOR PLAN
原始平面图
?平面布局图
|| 序幕 || PROLOGUE
去发光,而不是被照亮,其实所有的美都是“蓄谋已久”。
本案,650平方米商业空间,项目位于榆林市,初始,业态定位餐厅,后改做专业的普拉提馆,设计师李刚将空间重新定位赋能,梳理商业逻辑和空间调性,解读主理人生活方式融合设计思维,设计师从主理人的姓氏秦中切分,以“禾” 为品牌名,展开品牌的全面空间思维延展,禾——亭亭玉立之感,亦寓意丰盛的收获,将空间是属性、主理人特性、用户感性三位一体。希望设计的加持下,能让空间拥有空间性格,普拉提、瑜伽、团课、私教、器械都专业的呈现,成为榆林知性女性的私属地。柔软但不失气场,现代化但蕴含地域元素特色,每个角度的关联是细腻的关照。
STARTREADING
W E L C O M E
所迎
原始空间处于写字楼中,户型方正,初始计划此空间作为餐厅进行设计规划,进行中,改变了营业业态,希望能够营造一个健康、品质的生活和社交圈层;
圆的概念是设计思维的起点,柔软、安静、美好、圆满,取意为形,空间的动线开始流动,入户设计便捷的更鞋区,让接待的节奏缓慢下来,也能在此整理状态和心情,跟随普拉提的节奏来感受。“禾”的生机,通过绿色的元素暗喻,比如进入室内的入户门,正是禾苗迎接结穗时的绿,希望每一位客人,都能在此收获完美的自己。
R E L E A S E
释放
融合接待和咨询功能的前厅,从空间的不同层次展开了圆套圆的释放,接待前台正对入户门的地方以站立的高度为主,旋转到背后,圆形进行了演绎和变形,增加坐的功能,将空间的竖向关系变成横向关系,弧形水平窗拉开光影序幕,下浮坐下来的视角,细细观察感受,让每个空间都留有“视口”,留给咨询时的舒适感;
设计师留足咨询接待区,让空间发挥多功能作用,亦发挥主题社交功能,可根据不同的主题策划,承载不同的主题派对,水平的窗台未来也可联动友人的花店进行花艺展。
Q E I E T L Y
悄然
前台接待区到健身区,中间做了停顿连接点,此处作为专业普拉提的装备展示区,原始的建筑承重方柱子设计师做了巧妙“消隐”,将柱子圆形化,石膏线瓦楞的视觉层次感,同时将此处空间动线一分为二,既能满足停留驻足细看的时间,也互不打扰,视线的最远处,刚好看到入户盒子门,多方的互动悄然发生。
穿行而过,进入到普拉提健身区,两间可开合的大教室,长虹玻璃干净质感,光影通透,隐约看到普拉提课中的影影绰绰,也很美好;
走廊拱形结合陕北榆林的窑洞特色进行现代化设计的演绎呈现,走廊尽头的装置配上不同的绿色又一次点题。
A B U N D A N T
丰盈
设计在整体动线的贯穿中藏了很多细节,机电空调都是侧收口的施工细节让整体空间的高级质感凸显;
引导客户的使用节奏,与咨询和接待空间不同,作为简餐区,设计师将满满的仪式感细节渗透其中,运动前后,补充能量,喝茶、简餐、休闲的时间拉长,吧台的手工砖是仪式感,也是迎合主题的色彩。
C 0 G N I Z E
感知
普拉提器械室,专业的器械室空间突出的核心,因此设计师将空间和器械间的安全距离设定好,不使用任何直射灯光,软膜天花模仿自然空间,圆弧的演绎在窗户一侧进行展现,我希望在此,你可以静下心来找自己。
人生盈盈,不读残诗愿你,一直都是最好的年纪,最好的时光,一直在路上,去接纳和坚持。
ABOUT PROJECT
项目名称/ Name |禾·有氧空间
项目类型/ Type |商业空间
项目位置/ Location |中国· 榆林
项目面积
/Area | 650
完工时间
/ Time |2022
主创设计师/Design | 李刚
深化设计 /Deepen | 東木营造施工图深化组
项目摄影/Photo | 任东
ABOUT DESIGNER
李刚
東木营造联合创始人
客服
消息
收藏
下载
最近

























