知末
知末
创作上传
VIP
收藏下载
登录 | 注册有礼

腾讯科技北京演播厅室内设计

2013/10/23 15:07:39
查看完整案例
微信扫一扫
收藏
下载
腾讯科技北京演播厅室内设计-0
主入口
腾讯科技北京演播厅室内设计-2
首层公共空间1
腾讯科技北京演播厅室内设计-4
首层公共空间2
腾讯科技北京演播厅室内设计-6
首层公共空间3
腾讯科技北京演播厅室内设计-8
首层公共空间4
腾讯科技北京演播厅室内设计-10
二层空间
腾讯科技北京演播厅室内设计-12
二层环廊1
腾讯科技北京演播厅室内设计-14
二层环廊2
腾讯科技北京演播厅室内设计-16
二层环廊3
腾讯科技北京演播厅室内设计-18
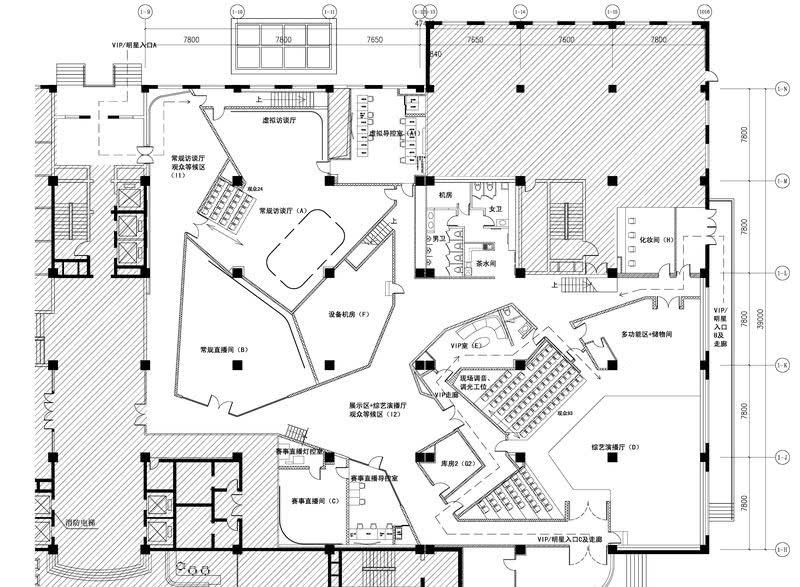
腾讯科技北京演播厅室内设计-19
一层平面图
腾讯科技北京演播厅室内设计-21
二层平面图
南京喵熊网络科技有限公司 苏ICP备18050492号-4知末 © 2018—2020 . All photos and trademark graphics are copyrighted by their owners.增值电信业务经营许可证(ICP)苏B2-20201444苏公网安备 32011302321234号
客服
消息
收藏
下载
最近